There’s something for everyone in Clapham and it draws an eclectic crowd. Clapham Common buzzes with activity and there’s a diverse mix of restaurants, shops, independent boutiques and nightlife, along with some wonderful architecture. The local schools are excellent and the transport options plentiful, with three London Underground (Northern Line) stations in close proximity and frequent London Overground trains from Clapham High Street station. It rarely feels overcrowded here, despite the abundance of things to do, and Clapham endures as one of the most desirable places to live in south London.
Clapham area guide

















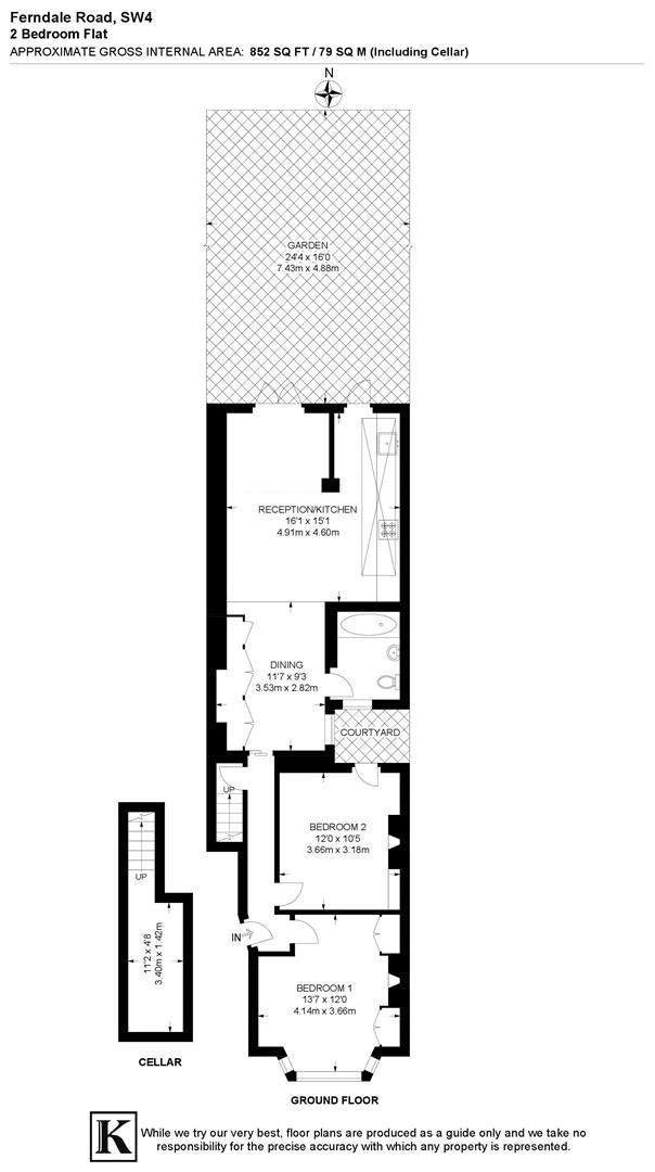
Ferndale Road, SW4
Features
- Two double bedrooms
- Landscaped private garden
- Victorian conversion with architecturally designed features
- Meticulous presentation throughout
- Study area
- Tanked cellar
- Highly sought-after location
- Local amenities of Clapham and Brixton
- Freehold for the entire building
- Chain-free
Property details
Keating Estates are delighted to present to market an exceptional two double bedroom flat with a landscaped garden and study area, boasting striking architectural design blended seamlessly with a wealth of characterful period features. This immaculate home is set within a handsome Victorian conversion on Ferndale Road, now a low traffic street no longer used as a through road, ideally positioned between the vast array of amenities on offer in both Clapham and Brixton.
Offering unique and stylish living space, a fully landscaped private garden and a tanked cellar, this charming property also comes with the freehold to the entire building.
Upon entering, the quality of finish is immediately apparent. The property has been extensively improved by the current vendor, including renovation of bedrooms and hallway including insulation, new flooring and column radiators. Plus a full re-decoration throughout with Farrow & Ball and newly installed thermostats for the underfloor heating, creating a thoughtful balance of style and charm. High ceilings, original marble fireplaces and intricate ceiling rosettes pair elegantly with oak flooring, and modern fixtures, creating a warm yet sophisticated home.
At the rear, the impressive open-plan reception and kitchen is a truly striking space, bathed in natural light from an expansive skylight set within the vaulted ceiling, complemented by exposed timber beams. Solid oak French doors create a seamless connection to the private, fully designed garden, inviting the outdoors in. The secluded garden has been beautifully landscaped, featuring a levelled patio of aged stone, gravel pathways, and water outlet, plus a flourishing apple tree – a charming focal point and a rare find in this part of London. With ample room for outdoor dining and entertaining, this peaceful sanctuary feels worlds away from its central location.
The reception area offers generous proportions, ideal for both entertaining around the dining table or day-to-day relaxation from a comfy spot on the sofa, overlooking the garden. The bespoke, integrated kitchen combines style with practicality. Sleek granite worktops are paired with newly fitted sink and tap, plus high-spec integrated appliances, including a new wine cooler, and plentiful cabinetry for an uncluttered finish. A thoughtfully designed study area sits adjacent, with a wall of neatly built-in storage and a picture window framing views of the courtyard – the perfect spot for working from home in peace. The natural flow of the layout ensures each space feels both distinct and connected, while underfloor heating runs throughout the living areas and bathroom, adding to the home’s comfort and contemporary feel.
Both double bedrooms are generously proportioned and tastefully presented, each with high, corniced ceilings adding to the soothing ambience. The principal is nestled behind an attractive sash bay window with plantation shutters whilst two sets of bespoke fitted wardrobes elegantly frame the striking marble fireplace, creating both a practical and stylish focal point within the room. The second double bedroom also boasts a feature fireplace, with an open wardrobe to one side, and a plaster feature wall to the other. A large-pane glass door leads out to the charming courtyard, ideal for a morning coffee, or reading a book under the stars. The luxurious bathroom is finished to a high standard, with natural light pouring in from a skylight above the bathtub, complete with overhead rain shower, and underfloor heating ensuring toasty toes all year round.
Further advantages include a tanked cellar, and -in addition to the interior renovations - improvements have also been made to the building itself including repointing of the rear wall, resealing of the bay window roof, redecoration of the shared entrance hallway, and guttering cleaned and maintained across the entire property.
The location is fantastic. Clapham High Street is just a six-minute walk, with its array of restaurants, bars, and nightlife leading to Clapham Common’s green open spaces, perfect for outdoor pursuits. Clapham Old Town and Abbeville Village also offer a more relaxed café culture and boutique shopping. A nine-minute walk in the other direction is central Brixton, offering a range of amenities from private members clubs to music venues and the extremely popular Brixton Village, plus large brand shops and the incredible Brockwell Park with its iconic Lido. The bars, restaurants and supermarkets of the popular Acre Lane are also a short stroll from your door.
Potential purchasers will benefit from fantastic transport links which include access to the Victoria Line at Brixton (running 24hrs at the weekend), the Northern Line at Clapham North and Clapham Common stations, plus the overground services at both Clapham High Street and Brixton. There are also multiple day and night buses whisking into central London and beyond, as well as the Clapham Super Cycle Highway.
A truly special property, early registration of interest is highly recommended.
Freehold to the entire building and chain-free.
EPC rating: C (71)
Clapham North
0.4 mi / 7 mins walk
Route & infoZONE 2, Northern Line underground station with trains north via Bank or Charing Cross every five minutes (approx)
Clapham High Street
0.4 mi / 9 mins walk
Route & infoZONE 2 Overground line between Highbury and Islington and Clapham Junction with trains every 5 minutes (approx). Limited service of Southeastern trains to Victoria too.
Brixton
0.6 mi / 12 mins walk
Route & infoVictoria Line services every three mins (approx) to Finsbury Park and Walthamstow Central.
Brixton
0.6 mi / 12 mins walk
Route & info4 trains direct to Victoria per hour and 4 to Orpington via Herne Hill
Clapham Common
0.7 mi / 15 mins walk
Route & infoZONE 2, Northern Line underground station with trains north via Bank or Charing Cross every five minutes (approx)
Stockwell
0.9 mi / 19 mins walk
Route & infoZONE 2, Northern Line and Victoria Line underground station with trains north via Bank or Charing Cross every five minutes on the Morden to Barnet/Edgeware, Northern Line (approx) and Via Victoria on the Brixton to Walhamstow Central, Victoria Line.
Wandsworth Road
1 mi / 21 mins walk
Route & infoZONE 2. Overground and Southeastern services to Clapham Junction, Highbury and Islington via Canada Water and sporadically to Victoria and Battersea Park.
Loughborough Junction
1.2 mi / 25 mins walk
Route & infoTrains north to Blackfriars (8 mins), Farrindon (15 mins) and Kings Cross/St Pancras (18 mins) and beyond up to north west London every 10 mins at rush hour.
Herne Hill
1.4 mi / 31 mins walk
Route & infoZONE 2. First Capital Connect services to Victoria, Blackfriars and Wimbledon.
Nine Elms
1.6 mi / 34 mins walk
Route & infoClapham area highlights




Similar properties
What's your property worth?
Whether it’s time to move or you’re just weighing up your options, we can help you work out where you stand in the market with a free sales or lettings valuation.
Value my property