Brixton is a melting pot of culture, cuisine and creativity. An explosion of inventive, new restaurants, pop-ups, fashion stores and art galleries sit alongside the many great pubs, music venues and nightclubs that have been around for years. Transport links are excellent, with London Underground (Victoria Line) trains reaching central London in 12 minutes. If you’re craving green space, Brockwell Park and its famed Art Deco lido are close by. Brixton brings together all the best things about London and is one of the most vibrant and diverse places to live south of the river.
Brixton area guide
















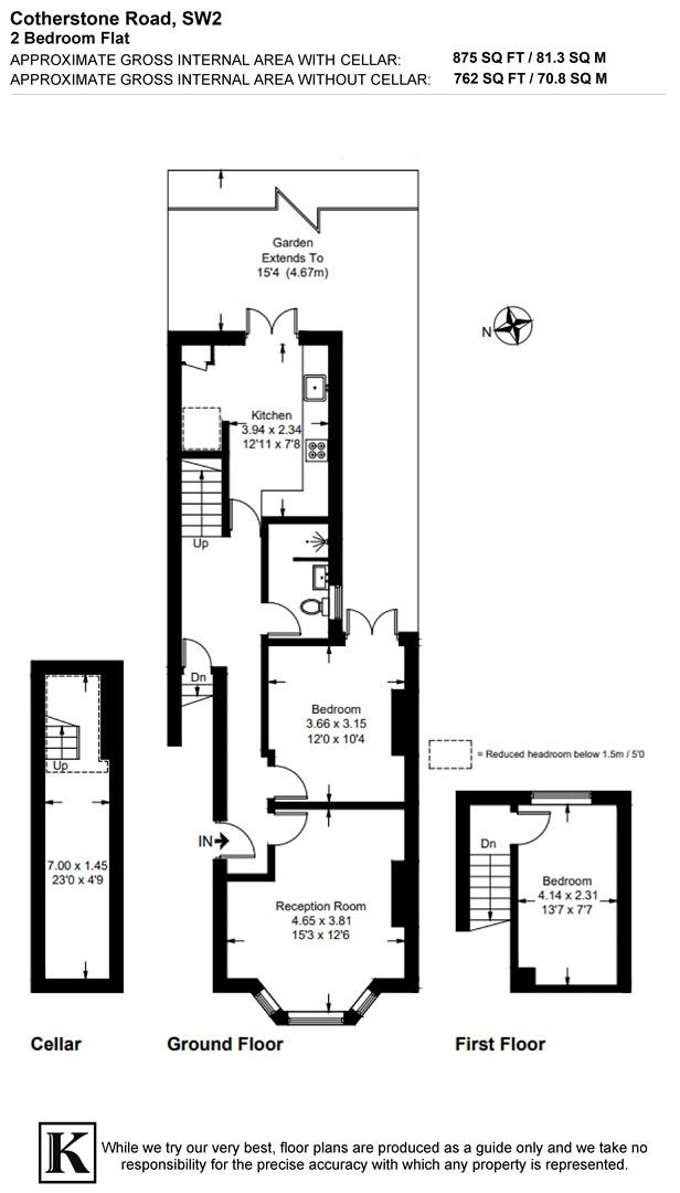
Cotherstone Road, SW2
Features
- Two double bedrooms
- Private walled garden
- Split-level Victorian conversion
- Beautifully presented throughout
- Adjacent to a pretty garden square
- Local shops, cafes, schools and pub all nearby
- Fifteen-minute walk to Brixton
- Nine-minute walk to Streatham Hill
- Excellent variety of transport links
- Share of freehold
Property details
Keating Estates are delighted to present to market this characterful two bedroom split-level flat with a private walled garden, set within an attractive period conversion on the sought-after Cotherstone Road. The property is situated within a residential pocket of Brixton Hill, on a no-through road adjacent to a beautiful garden square and has easy access to central Brixton, Streatham and Clapham.
This charming home offers a tasteful blend of contemporary design and original period features, creating a stylish yet welcoming environment, whilst the friendly neighbours contribute to a real sense of community.
Lovingly cared for, the property has undergone a range of thoughtful renovations, ensuring a high standard of finish throughout. Recent works in that past four years include a new kitchen and bathroom with stylish new flooring, the removal of a kitchen wall to create a more spacious and sociable layout, and professional redecoration throughout. Extensive damp-proofing works have been carried out, alongside new stairs and plush bedroom carpets enhancing both the aesthetic and comfort of the home. Externally, the private garden has also been improved with new raised beds, fresh planting, and newly installed fences to both sides offering a beautifully landscaped outdoor space.
Spanning close to 900 square feet, the property boasts an impressive sense of space, with a well-proportioned separate reception room brimming with character. High ceilings and original shadow cornicing add to the period charm, while a large bay window invites an abundance of natural light. A perfect space for entertaining or unwinding in comfort. Tucked away at the rear, the kitchen-diner is well-equipped with modern shaker cabinetry in stylishly contrasting green, grey and white tones, topped with warm wooden work surfaces. Designed for both practicality and aesthetics, the layout includes space for a dining table, creating a welcoming social hub. French doors lead directly to the garden, framing peaceful views and ensuring a bright and airy feel.
The private walled garden is a true highlight, offering a secluded outdoor sanctuary, ideal for al fresco dining, gardening, or simply basking in the summer sun. The positioning of surrounding buildings enhances the privacy and ensures additional natural light, creating a tranquil retreat.
This lovely home is arranged over two floors, offering a desirable sense of separation between the bedrooms. The principal bedroom is set on the ground floor, a tranquil space with elegant corniced ceilings and French doors opening directly to the garden—ideal for weekend lie-ins or enjoying a nightcap under the stars. The second bedroom resides upstairs, creating a secluded retreat with leafy views and soft carpets, adding warmth and comfort. A contemporary bathroom serves the home, featuring a luxurious walk-in rain shower set against striking navy blue tiling, delivering a sleek and modern aesthetic. There is also a cellar, perfect for hiding away those lesser used items, keeping the home neat and tidy.
Situated on friendly and neighbourly road, the local residents are brought together by the green open spaces of Holmewood Gardens just a few doors down. This pretty garden square is essentially a large garden to which you do not have to tend, with a designated area for dog exercise, children’s playground and open grass for communal events. The Neighbourhood Association has planted an orchard, and is actively involved in ensuring care of the area, plus organising many social events including summer parties, winter festivals, Hallowe’en activities. The gardens have played host to free concerts from Brixton Chamber Orchestra and the 606 Jazz club. Very family friendly, there are two great schools on the street (Orchard Primary rated Outstanding by Ofsted and Christ Church Streatham was in top 2% of attainment nationally last year).
Nearby, there are both chain and independent shops, cafes, chemists, doctors and a gem of a pub, the Elm Park Tavern, just a five-minute walk away. Everything that Brixton has to offer, is a fifteen-minute walk away, from music venues and the culinary delights of Brixton Village to large brand shops and cracking transport links, first stop on the Victoria Line. Regular day and night buses run up and down Brixton Hill, with nine bus routes to whisk you to the tube within a few minutes, and on into the city. In the other direction, you have Streatham High Street just a nine-minute walk away, with its multitude of restaurants and bars. Brockwell Park is a ten-minute stroll, with Tooting and Balham Common and Clapham Common also within walking distance. Having the South Circular on your doorstep and the option for on-street permit parking the location is perfect for those with a vehicle.
Share of freehold.
EPC rating: D (59)
Streatham Hill
0.6 mi / 14 mins walk
Route & infoZONE 2. Southern services to Victoria via Clapham Junction, London Bridge, Crystal Palace and Sutton.
Tulse Hill
0.9 mi / 18 mins walk
Route & infoZONE 3. Southern and First Capital Connect services to London Bridge via Peckham Rye, Blackfriars, West Croydon, Beckenham Junction via Crystal Palace and Sutton via Wimbledon.
Herne Hill
1.3 mi / 26 mins walk
Route & infoZONE 2. First Capital Connect services to Victoria, Blackfriars and Wimbledon.
Clapham South
1.3 mi / 28 mins walk
Route & infoZONE 2 (and 3), Northern Line underground station with trains north via Bank or Charing Cross every five minutes (approx)
Brixton
1.4 mi / 29 mins walk
Route & infoVictoria Line services every three mins (approx) to Finsbury Park and Walthamstow Central.
West Norwood
1.4 mi / 31 mins walk
Route & infoZONE 3. Southern Service to and from London Victoria, London Bridge, Beckenham Junction and Sutton via West Croydon, with many services calling at Crystal Palace, which is two stops away to the south. The typical journey time into London Victoria is about 25 minutes.
Brixton
1.5 mi / 31 mins walk
Route & info4 trains direct to Victoria per hour and 4 to Orpington via Herne Hill
Balham
1.6 mi / 34 mins walk
Route & infoZONE 3. Southern services to Victoria, London Bridge, Milton Keynes, Epsom and Sutton.
West Dulwich
1.6 mi / 34 mins walk
Route & infoZONE 3. Southeastern service to London Victoria and Orpington.
Balham
1.6 mi / 34 mins walk
Route & infoZONE 3. Northern Line underground station with trains north via Bank or Charing Cross.
Brixton area highlights





Similar properties
What's your property worth?
Whether it’s time to move or you’re just weighing up your options, we can help you work out where you stand in the market with a free sales or lettings valuation.
Value my property