Brixton is a melting pot of culture, cuisine and creativity. An explosion of inventive, new restaurants, pop-ups, fashion stores and art galleries sit alongside the many great pubs, music venues and nightclubs that have been around for years. Transport links are excellent, with London Underground (Victoria Line) trains reaching central London in 12 minutes. If you’re craving green space, Brockwell Park and its famed Art Deco lido are close by. Brixton brings together all the best things about London and is one of the most vibrant and diverse places to live south of the river.
Brixton area guide




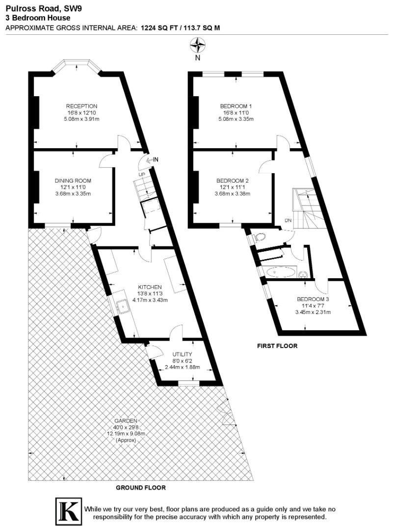
Pulross Road, SW9
Features
- Three bedrooms
- Victorian end of terrace house
- Cash buyers only
- Private garden
- Development opportunity
- Cellar
- Central Brixton just a two-minute stroll away
- Clapham High Street and Stockwell in under fifteen-minute walk
- Access to Victoria and Northern Lines plus Overground
- Chain- free
Property details
Keating Estates are proud to present this three-bedroom end-of-terrace Victorian property situated on Pulross Road, offering a rare opportunity for cash buyers or experienced investors to acquire a home with substantial potential. Requiring full renovation, this property is a blank canvas, ideal for those looking to create a tailored living space or capitalise on its investment possibilities.
Currently in need of extensive work, the property offers flexible accommodation that can be redesigned and extended to suit modern living (subject to planning permission). Its end-of-terrace position ensures extra natural light and side access, while the cellar could be adapted for storage. The rear garden, though requiring attention, presents the chance to create an outdoor area for relaxation, entertaining, or landscaping.
This is an ideal project for buyers seeking a property they can shape from the ground up. Whether extending the kitchen, creating open-plan living, or adding extra bedrooms, the potential to transform this home is clear for those prepared to undertake a full renovation.
Situated in a well-connected neighbourhood, the property is just a five-minute walk from the first stop on the Victoria Line at Brixton tube station. Local amenities are close at hand, including the culinary offerings of Brixton Village, The Upstairs private members club, and The Ritzy cinema. Stockwell station and the Northern/Victoria line interchange are only a ten-minute walk, while Clapham High Street’s restaurants and nightlife are under fifteen minutes away. Green spaces such as Brockwell Park, Slade Gardens, and Clapham Common are all within easy walking distance, offering a perfect balance of city convenience and outdoor leisure. With its combination of location and scope for transformation, this property is an exceptional opportunity for cash buyers or developers ready to take on a rewarding project.
Freehold.
Chain-free.
EPC rating: F (37)
Brixton area highlights





Similar properties
What's your property worth?
Whether it’s time to move or you’re just weighing up your options, we can help you work out where you stand in the market with a free sales or lettings valuation.
Value my property