Trinity Gardens, SW9

4 bedroom house for sale
Freehold
£1,545,000

Features

  • Four double bedrooms
  • Two bathrooms
  • Versatile garden room with electricity
  • Victorian townhouse
  • Solar panels
  • Over 1,700 square feet
  • Desirable enclave overlooking garden square
  • Vast array of amenities on the doorstep
  • Victoria Line a six-minute stroll
  • Freehold

Property details

Keating Estates are delighted to present this exceptional four double bedroom, two bathroom Victorian townhouse, offering over 1,700 square feet of versatile living space. Nestled on the desirable Trinity Gardens in the heart of Brixton, this home seamlessly blends period charm with stylish contemporary design. Set on a peaceful one-way cul-de-sac overlooking a leafy garden square, it provides a rare balance of tranquility and central convenience.

Behind its elegant Victorian façade, the property has been thoughtfully refurbished and extended to create a bright, flexible living environment across four well-planned floors. Every level has been designed to maximise space and natural light, combining modern comfort with characterful features throughout.

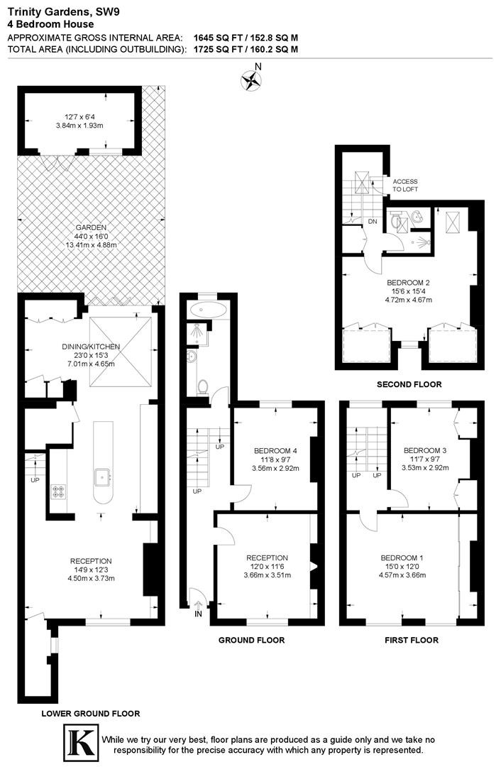
The ground floor opens with a welcoming hallway leading to a formal reception room at the front of the house. This elegant space features a fireplace and a large sash window, creating a calm and inviting atmosphere perfect for relaxing or entertaining. Also on this floor is the fourth bedroom, currently used as a study, alongside a family bathroom with both a separate bathtub and a generous shower cubicle, ideal for busy households.

Downstairs, the heart of the home unfolds in an impressive open-plan kitchen, second reception, and dining area designed for contemporary living. The kitchen is finished in sleek cream gloss with handleless cabinetry, offering a clean, modern look. A central island houses the sink and provides generous worktop space, while integrated appliances are neatly built in, leaving ample room for an American-style fridge freezer. A separate utility room adds practical storage and space for laundry appliances, keeping the main kitchen uncluttered.

The adjoining living area is cosy and inviting, with alcove shelving perfect for books or display pieces. Beyond this, the kitchen flows into a bright dining space beneath a conservatory-style apex roof, where bi-fold doors open onto the landscaped garden, creating a seamless indoor-outdoor connection ideal for summer entertaining.

The garden has been thoughtfully landscaped for both beauty and functionality. A paved patio offers space for alfresco dining, complemented by a built-in pizza oven for memorable gatherings. At the rear, a well-insulated outbuilding with power serves as a versatile home office, creative studio, or gym, offering a quiet retreat from the main house.

The first floor is home to two double bedrooms, each generously proportioned. The principal bedroom features built-in wardrobes and a serene atmosphere, perfect for unwinding at the end of the day. The third bedroom also includes built-in storage and can function as a nursery, guest room, or office.

On the top floor, the second bedroom is a spacious, light-filled retreat with ample storage, accompanied by a second bathroom with a modern shower cubicle, providing convenience and privacy for family or guests. The layout ensures each bedroom is well-separated, offering flexibility and an excellent sense of privacy.

The property underwent a full refurbishment between 2012 and 2013, including a new roof and exterior works. Additional upgrades include underfloor heating, solar panels, and a carefully designed rear extension across the lower and ground floors, ensuring long-term peace of mind for the new owners.

Trinity Gardens is one of Brixton’s most sought-after addresses—a quiet cul-de-sac encircling a communal garden square with its own friendly local pub. Residents enjoy a peaceful, community-focused setting while remaining close to the energy of central Brixton. The area boasts independent restaurants, bars, and cafés, with Brixton Village and Pop Brixton just a short stroll away. For everyday convenience, a large supermarket is nearby.

Commuters benefit from a six-minute walk to Brixton tube station, first stop on the Victoria Line, with London Victoria reachable in under fifteen minutes and the City in around twenty. Clapham High Street and Abbeville Road are a pleasant walk along Acre Lane, offering boutiques, cafés, and the renowned Aries Bakery. Nearby green spaces include Brockwell Park, with its historic Lido, and Clapham Common, providing excellent outdoor leisure options.

This exceptional home offers a rare combination of history, space, and modern comfort in a central yet tucked-away Brixton location.

Freehold.

EPC rating: C (70)

Floor plan

Floorplan

Front door to work

An estimate of the journey times to popular London destinations, using the first fast train after 8am.

  • Victoria 13 mins
  • South Bank 18 mins
  • London Bridge 19 mins
  • The City 21 mins
  • Canary Wharf 32 mins

Brixton

0.2 mi / 5 mins walk

Route & info

Victoria Line services every three mins (approx) to Finsbury Park and Walthamstow Central.

Brixton

0.3 mi / 7 mins walk

Route & info

4 trains direct to Victoria per hour and 4 to Orpington via Herne Hill

Clapham North

0.9 mi / 19 mins walk

Route & info

ZONE 2, Northern Line underground station with trains north via Bank or Charing Cross every five minutes (approx)

Loughborough Junction

0.9 mi / 20 mins walk

Route & info

Trains north to Blackfriars (8 mins), Farrindon (15 mins) and Kings Cross/St Pancras (18 mins) and beyond up to north west London every 10 mins at rush hour.

Clapham High Street

1 mi / 21 mins walk

Route & info

ZONE 2 Overground line between Highbury and Islington and Clapham Junction with trains every 5 minutes (approx). Limited service of Southeastern trains to Victoria too.

Stockwell

1 mi / 22 mins walk

Route & info

ZONE 2, Northern Line and Victoria Line underground station with trains north via Bank or Charing Cross every five minutes on the Morden to Barnet/Edgeware, Northern Line (approx) and Via Victoria on the Brixton to Walhamstow Central, Victoria Line.

Clapham Common

1.1 mi / 25 mins walk

Route & info

ZONE 2, Northern Line underground station with trains north via Bank or Charing Cross every five minutes (approx)

Herne Hill

1.1 mi / 25 mins walk

Route & info

ZONE 2. First Capital Connect services to Victoria, Blackfriars and Wimbledon.

Wandsworth Road

1.6 mi / 34 mins walk

Route & info

ZONE 2. Overground and Southeastern services to Clapham Junction, Highbury and Islington via Canada Water and sporadically to Victoria and Battersea Park. 

Nine Elms

1.8 mi / 38 mins walk

Route & info

Brixton area highlights

Brixton is a melting pot of culture, cuisine and creativity. An explosion of inventive, new restaurants, pop-ups, fashion stores and art galleries sit alongside the many great pubs, music venues and nightclubs that have been around for years. Transport links are excellent, with London Underground (Victoria Line) trains reaching central London in 12 minutes. If you’re craving green space, Brockwell Park and its famed Art Deco lido are close by. Brixton brings together all the best things about London and is one of the most vibrant and diverse places to live south of the river.

Brixton area guide

What's your property worth?

Whether it’s time to move or you’re just weighing up your options, we can help you work out where you stand in the market with a free sales or lettings valuation.

Value my property