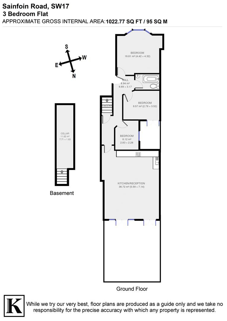
Sainfoin Road, SW17

3 bedroom flat for sale
Leasehold

Asking price

£765,000

Sold price

£795,000

Features

  • Three bedrooms
  • Private garden
  • Victorian conversion
  • Over 1,000 square feet
  • Balham High Street a seven-minute stroll away
  • Tooting Bec an eight-minute walk
  • The Common a ten-minute walk
  • Northern Tube Line and trains
  • Chain-free
  • Share of freehold will be granted

Property details

Keating Estates are proud to present to market a spacious three bedroom apartment with a private garden, set within an attractive Victorian property on Sainfoin Road, a short stroll to the Northern Line and both Tooting Bec and Balham High Streets.

This property is a complete blank canvas, ready to move into straight away yet with the potential to add your own decorative touches over time. One of the main features is the exceptional open-plan kitchen/reception area at the rear of the property, this area is truly the heart of the home. The space is cleverly zoned to include a modern, fully fitted kitchen with integrated appliances and generous worktop space. The reception and dining area offers ample room for relaxing and socialising, with direct access to the low-maintenance garden through two sets of French doors that invite in plenty of light and create an airy, open feel.

The principal bedroom is located at the front of the property and has a wide bay window that bathes the room in natural light. The family bathroom is neutral featuring a bathtub and overhead shower and is positioned between the principal bedroom and the second bedroom. This layout allows easy access from all three bedrooms, enhancing the property’s suitability for shared living or family occupation. Leading off the second bedroom through French doors is a lovely courtyard which is an ideal space to enjoy a morning coffee or evening nightcap. The third bedroom, still with space for a double bed, can also be repurposed to suit needs such as a home office if desired.

Accessed internally via a staircase from the hallway, is the cellar, making it convenient and practical for everyday use. This versatile space presents an excellent opportunity for additional storage.

The location is fantastic, set on a quiet residential street, tucked away yet with ease of access to both Tooting Bec and Balham. Just a seven-minute walk brings you to the vibrant heart of central Balham boasting a rich array of local amenities. Purchasers will be spoilt for choice with a diverse selection of cafes, restaurants and bars including The Bedford, a historic pub and venue hosting live music, comedy, and theatre. The high street is lined with independent boutiques, well-known brands, and delightful eateries, catering to all tastes and preferences. For daily necessities, there are several large brand supermarkets within easy reach. In the other direction, Tooting Bec High street is an eight-minute walk boasting it’s own eclectic array of eateries and nightlife, including the famous Tooting Bec Market.

The transport links are excellent with Balham Stations both a ten-minute walk from your front door, offering access to both National Rail and Northern Line Tube services for swift and convenient access to Central London. Tooting Bec Tube Station is also a nine-minute stroll. The area is well-served by a variety of day and night bus routes, ensuring accessible travel throughout the city whatever the hour. Tooting Bec Common is a ten-minute amble away, providing a peaceful retreat from the bustle of city life, this expansive green space is perfect for leisurely walks, picnics, and outdoor activities including a swim at Tooting Bec Lido, one of the largest outdoor swimming pools in the UK. Wandsworth Common and Clapham Common are also within leisurely walking distance if a change of scenery is ever desired.

Chain-free. A share of the freehold will be granted upon completion of the sale of the final flat in the building.

EPC rating: D (68)

Floor plan

Floorplan

Front door to work

An estimate of the journey times to popular London destinations, using the first fast train after 8am.

  • Victoria 26 mins
  • South Bank 28 mins
  • London Bridge 29 mins
  • The City 31 mins
  • Canary Wharf 42 mins

Tooting Bec

0.4 mi / 10 mins walk

Route & info

ZONE 3, Northern Line underground station with trains north via Bank or Charing Cross every five minutes (approx).

Balham

0.5 mi / 11 mins walk

Route & info

ZONE 3. Northern Line underground station with trains north via Bank or Charing Cross.

Balham

0.5 mi / 12 mins walk

Route & info

ZONE 3. Southern services to Victoria, London Bridge, Milton Keynes, Epsom and Sutton.

Wandsworth Common

1 mi / 21 mins walk

Route & info

Southern services to Victoria via Clapham Junction, London Bridge, Sutton, Epsom and Milton Keynes.

Clapham South

1.2 mi / 27 mins walk

Route & info

ZONE 2 (and 3), Northern Line underground station with trains north via Bank or Charing Cross every five minutes (approx)

Streatham Hill

1.5 mi / 33 mins walk

Route & info

ZONE 2. Southern services to Victoria via Clapham Junction, London Bridge, Crystal Palace and Sutton. 

Streatham

1.6 mi / 35 mins walk

Route & info

ZONE 3. Southern and First Capital Conect services to Blackfriars via Herne Hill, London Bridge via Peckham Rye, Sutton via Wimbledon and West Croydon.

Clapham Common

2 mi / 45 mins walk

Route & info

ZONE 2, Northern Line underground station with trains north via Bank or Charing Cross every five minutes (approx)

Earlsfield

2.1 mi / 44 mins walk

Route & info

South West Trains services to Waterloo, Clapham Junction, Richmond, Epsom, etc. 

Clapham Junction

2.3 mi / 50 mins walk

Route & info

ZONE 2. Up to 200 trains an hour to Waterloo, Victoria, London Bridge and many more destinations.

Balham area highlights

Balham is buzzing with independent boutiques, cafes, coffee shops and happening restaurants. It has a slightly more relaxed, village feel than neighbouring Clapham and Brixton, but with enough going on to satisfy everyone's interests. Transport links are excellent, with both London Underground (Northern Line) and National Rail services from Balham Station. The green, open spaces of Tooting, Clapham and Wandsworth Common are all within walking distance. Add to this a strong community spirit and some great local schools, and it's clear to see why Balham has twice been named in The Sunday Times' list of Best Places to Live!

Balham area guide

What's your property worth?

Whether it’s time to move or you’re just weighing up your options, we can help you work out where you stand in the market with a free sales or lettings valuation.

Value my property