Arodene Road, SW2

2 bedroom flat for sale
Share of Freehold

Asking price

£600,000

Sold price

£585,000

Features

  • Two double bedrooms
  • Large private garden with side access
  • End of terrace Victorian conversion
  • Demised cellar
  • Sought-after quiet residential street
  • Local cafes, pubs, shops and eateries on the doorstep
  • Walking distance to Brixton and Herne Hill town centres
  • Brockwell Park close by
  • Victoria line and overground
  • Chain- free

Property details

Keating Estates are proud to present to market this appealing two-bedroom garden flat occupying the ground floor of an attractive end-of-terrace Victorian house on Arodene Road, a sought-after and neighbourly street ideally located for the amenities and transport connections of central Brixton, yet set back enough to maintain a welcome sense of calm.

The property has a pleasing façade and offers a well-balanced layout throughout. At the rear sits the main hub of the home: a spacious open-plan reception and kitchen area. The reception zone provides generous room for living and dining arrangements, with bold blue walls adding a confident, contemporary backdrop.

The kitchen is positioned at the rear and features a large window overlooking the garden, filling the space with natural light. It is fitted with sleek modern cabinetry and neutral worktops, creating a clean and understated aesthetic. Integrated appliances enhance functionality, while the overall layout allows for efficient movement when cooking or hosting. This space is designed to connect seamlessly with the reception area, enabling both rooms to operate effectively as one large, open environment.

From the kitchen, French doors open directly onto the private garden. The outdoor space is designed for ease of maintenance, beginning with a patio that wraps around the side. Beyond this, the garden transitions into a section laid with shingles, leading to a decked area at the rear. This final section provides an additional zone for dining furniture or relaxed seating. The shape of the garden creates defined areas and a sense of depth. Side access is an added benefit, allowing convenient entry without passing through the flat, ideal for bikes, prams or al-fresco hosting.

The principal bedroom sits at the front of the property and benefits from a large bay window that allows an abundance of natural light. Its size and layout offer versatility for different bedroom configurations. The second bedroom is positioned further along the hallway and is also a comfortable double room.

A family bathroom sits between the two bedrooms, fitted with a white suite, shower over the bath, and neutral tiling. Its central position within the property makes it easily accessible from both sleeping areas and the main living spaces.

Additional practical advantages include a demised cellar, providing useful storage for lesser-used items.

The property is situated in a quiet, leafy part of Brixton on tree-lined Arodene Road. The road and its adjoining streets enjoy a strong sense of community, with pedestrianised street events and local art fairs forming part of the annual calendar.

The location offers excellent access to central Brixton, which is approximately a ten-to-twelve-minute walk away. Here, residents can take advantage of the extensive choice of restaurants, bars, cafés, markets, and independent shops. In addition, several popular establishments on Brixton Hill, including F Mondays, Stir Coffee, Pizza Brixton, and the White Horse pub, are located within easy reach. Transport links are highly convenient. Brixton Underground station, the first stop on the Victoria Line, provides fast connections into central London and the City. Numerous bus routes also operate along Brixton Hill, offering reliable alternatives to the tube. Those who prefer green spaces will benefit from the close proximity of Brockwell Park, roughly an eight-minute walk from the property. A pleasant stroll across the park leads to Herne Hill, with its Thameslink station, a variety of cafés and restaurants, and the popular Sunday market. The surrounding area also provides straightforward access to Dulwich Village, East Dulwich, Peckham, and Clapham, broadening the range of amenities and leisure options available.

Share of freehold.

Chain-free.

EPC rating: D (62)

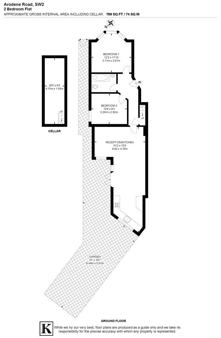
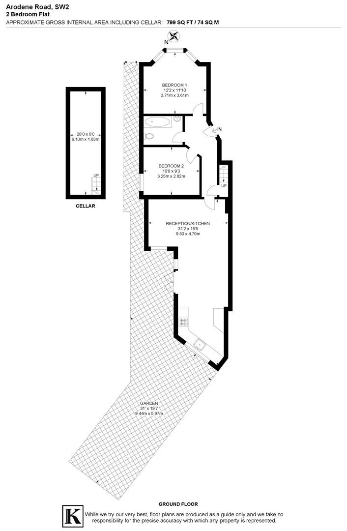
Floor plan

Floorplan

Front door to work

An estimate of the journey times to popular London destinations, using the first fast train after 8am.

  • Victoria 26 mins
  • South Bank 31 mins
  • London Bridge 32 mins
  • The City 34 mins
  • Canary Wharf 45 mins

Brixton

0.8 mi / 18 mins walk

Route & info

Victoria Line services every three mins (approx) to Finsbury Park and Walthamstow Central.

Herne Hill

0.9 mi / 20 mins walk

Route & info

ZONE 2. First Capital Connect services to Victoria, Blackfriars and Wimbledon.

Brixton

0.9 mi / 20 mins walk

Route & info

4 trains direct to Victoria per hour and 4 to Orpington via Herne Hill

Tulse Hill

1.2 mi / 27 mins walk

Route & info

ZONE 3. Southern and First Capital Connect services to London Bridge via Peckham Rye, Blackfriars, West Croydon, Beckenham Junction via Crystal Palace and Sutton via Wimbledon.

Clapham North

1.4 mi / 29 mins walk

Route & info

ZONE 2, Northern Line underground station with trains north via Bank or Charing Cross every five minutes (approx)

Streatham Hill

1.4 mi / 32 mins walk

Route & info

ZONE 2. Southern services to Victoria via Clapham Junction, London Bridge, Crystal Palace and Sutton. 

Clapham Common

1.4 mi / 31 mins walk

Route & info

ZONE 2, Northern Line underground station with trains north via Bank or Charing Cross every five minutes (approx)

Loughborough Junction

1.4 mi / 31 mins walk

Route & info

Trains north to Blackfriars (8 mins), Farrindon (15 mins) and Kings Cross/St Pancras (18 mins) and beyond up to north west London every 10 mins at rush hour.

Clapham High Street

1.4 mi / 31 mins walk

Route & info

ZONE 2 Overground line between Highbury and Islington and Clapham Junction with trains every 5 minutes (approx). Limited service of Southeastern trains to Victoria too.

North Dulwich

1.6 mi / 35 mins walk

Route & info

ZONE 2. Southern services to London Bridge via Peckham Rye, West Croydon and Beckenham Junction via Crystal Palace.

Brixton area highlights

Brixton is a melting pot of culture, cuisine and creativity. An explosion of inventive, new restaurants, pop-ups, fashion stores and art galleries sit alongside the many great pubs, music venues and nightclubs that have been around for years. Transport links are excellent, with London Underground (Victoria Line) trains reaching central London in 12 minutes. If you’re craving green space, Brockwell Park and its famed Art Deco lido are close by. Brixton brings together all the best things about London and is one of the most vibrant and diverse places to live south of the river.

Brixton area guide

What's your property worth?

Whether it’s time to move or you’re just weighing up your options, we can help you work out where you stand in the market with a free sales or lettings valuation.

Value my property