Saltoun Road, SW2

3 bedroom flat for sale
Share of Freehold
£590,000

Features

  • Three bedrooms
  • Private wrap-around garden
  • Two bathrooms plus WC
  • Victorian conversion
  • Demised cellar
  • Potential to extend STNP
  • Sought-after location close to transport links
  • Central Brixton on the doorstep
  • Brockwell Park a short stroll away
  • Share of Freehold. Chain-free

Property details

Keating Estates are proud to present this charming three bedroom garden flat on the sought-after Saltoun Road. Set within an elegant Victorian conversion, this stylish and spacious home blends period charm with modern living and is situated just moments from the vibrant heart of Brixton.

A rarity, this versatile period home boasts three bedrooms, each of which can be re-purposed to suit needs such as a secondary living room, or home office should all three bedrooms not be required.

A long, welcoming hallway guides you through the flat, subtly separating the living areas from the bedrooms to create a sense of balance and flow.

Forming the heart of the home, a bright and airy reception room is located towards the rear of the property. With generous proportions and flooded with natural light, this space is ideal for both relaxation and entertaining, offering ample room for a dining area. High ceilings and a calm, neutral palette combine to create a welcoming atmosphere. Flowing seamlessly from the reception room is the fully fitted modern kitchen, featuring sleek, gloss-finish cabinetry and integrated appliances. Offering excellent storage within wrap-around units, there is also plentiful worktop space for food preparation, making it a lovely place to cook while entertaining guests. A separate W/C is conveniently located off the hallway.

A back door from the reception room leads to the low-maintenance private garden, a wrap-around outdoor space that provides a tranquil escape from the hustle and bustle. The garden is divided into sections with artificial turf along the side, as well as decking and a patio area at the rear. In the warmer months, it’s easy to imagine enjoying morning coffees in the sunshine or relaxed weekend lunches with friends.

This lovely home boasts three well-proportioned bedrooms. The principal bedroom is located at the front, featuring a bay window with elegant sash frames that flood the room with natural light. This generous space includes fitted wardrobes and easily accommodates traditional bedroom furnishings, as well as a desk or dressing table if desired. A smart, tiled en-suite completes the room, featuring a walk-in shower, vanity unit, heated towel rail, and matte black fittings.

The second bedroom also includes built-in storage and offers a peaceful outlook onto the side of the garden. Bedroom three is quietly positioned at the rear of the flat and also enjoys garden views from a different aspect. This versatile space could serve as a guest room, nursery, or home office, depending on your needs.

A sleek fully tiled bathroom adjacent to the second bedroom features a bath with an overhead shower. The clean, modern design and practical layout ensure the space meets the demands of contemporary living.

Presented as a neutral blank canvas, this home is ready to move in to yet still packed with potential. It is offered chain-free and ready for you to make your own decorative mark. There is also precedent on the street for extending into the side return, subject to the necessary permissions. Additional benefits include a large cellar, providing convenient storage for lesser-used belongings and helping to keep the home neat and tidy.

Saltoun Road is a quiet, tree-lined street just off Windrush Square, in the centre of Brixton's cultural hub—around the corner from The Ritzy cinema and POP Brixton. The delights of trendy Brixton Village are just minutes away, offering a wide range of global cuisine. A wealth of independent cafés, restaurants, bars, and shops are right on your doorstep, making this a prime location for those wishing to enjoy everything Brixton has to offer.

Brixton tube station, the start of the Victoria Line, is only a five-minute walk away, offering quick and easy commuting, with 24-hour services on weekends. An interchange with the Northern Line is available just one stop away. In the opposite direction, the green open spaces of Brockwell Park are a ten-minute stroll away, home to the iconic 1930s Lido and exceptional sports facilities. Herne Hill, with its village charm, farmers’ market, eclectic shops, pubs, and Thameslink services, is just beyond the park. Clapham, Stockwell, and Loughborough Junction are also within walking distance, with regular day and night bus routes nearby offering access to the wider city.

Share of Freehold.

Chain-free.

EPC rating: C (70)

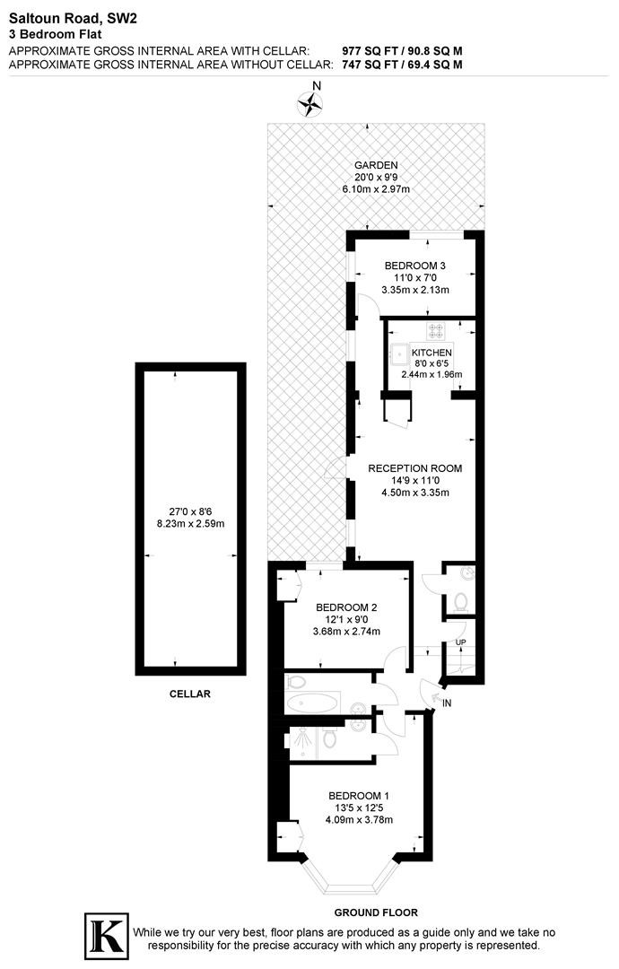
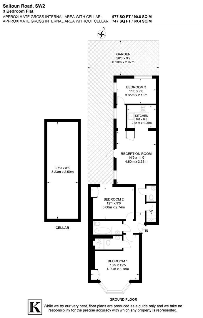
Floor plan

Floorplan

Front door to work

An estimate of the journey times to popular London destinations, using the first fast train after 8am.

  • Victoria 15 mins
  • South Bank 20 mins
  • London Bridge 21 mins
  • The City 23 mins
  • Canary Wharf 34 mins

Brixton

0.2 mi / 5 mins walk

Route & info

4 trains direct to Victoria per hour and 4 to Orpington via Herne Hill

Brixton

0.3 mi / 7 mins walk

Route & info

Victoria Line services every three mins (approx) to Finsbury Park and Walthamstow Central.

Loughborough Junction

0.7 mi / 15 mins walk

Route & info

Trains north to Blackfriars (8 mins), Farrindon (15 mins) and Kings Cross/St Pancras (18 mins) and beyond up to north west London every 10 mins at rush hour.

Herne Hill

0.8 mi / 16 mins walk

Route & info

ZONE 2. First Capital Connect services to Victoria, Blackfriars and Wimbledon.

Stockwell

1.1 mi / 23 mins walk

Route & info

ZONE 2, Northern Line and Victoria Line underground station with trains north via Bank or Charing Cross every five minutes on the Morden to Barnet/Edgeware, Northern Line (approx) and Via Victoria on the Brixton to Walhamstow Central, Victoria Line.

Clapham North

1.1 mi / 25 mins walk

Route & info

ZONE 2, Northern Line underground station with trains north via Bank or Charing Cross every five minutes (approx)

Clapham High Street

1.2 mi / 26 mins walk

Route & info

ZONE 2 Overground line between Highbury and Islington and Clapham Junction with trains every 5 minutes (approx). Limited service of Southeastern trains to Victoria too.

Clapham Common

1.3 mi / 30 mins walk

Route & info

ZONE 2, Northern Line underground station with trains north via Bank or Charing Cross every five minutes (approx)

Denmark Hill

1.4 mi / 31 mins walk

Route & info

ZONE 2, this station enjoys Overground, Southern, Southeastern services to, amongst others, Highbury and Islington via Canada Water, Victoria, Blackfriars, Clapham Junction, West Croydon and Sevenoaks.

North Dulwich

1.5 mi / 33 mins walk

Route & info

ZONE 2. Southern services to London Bridge via Peckham Rye, West Croydon and Beckenham Junction via Crystal Palace.

Brixton area highlights

Brixton is a melting pot of culture, cuisine and creativity. An explosion of inventive, new restaurants, pop-ups, fashion stores and art galleries sit alongside the many great pubs, music venues and nightclubs that have been around for years. Transport links are excellent, with London Underground (Victoria Line) trains reaching central London in 12 minutes. If you’re craving green space, Brockwell Park and its famed Art Deco lido are close by. Brixton brings together all the best things about London and is one of the most vibrant and diverse places to live south of the river.

Brixton area guide

What's your property worth?

Whether it’s time to move or you’re just weighing up your options, we can help you work out where you stand in the market with a free sales or lettings valuation.

Value my property