Hubert Grove, SW9

3 bedroom flat for sale
Share of Freehold

Features

  • Three double bedrooms
  • Victorian conversion
  • Two balconies
  • Over 1200 square feet of internal living space
  • Split over various floors
  • Northern, Victoria Line and Clapham High Street station in easy reach
  • Local amenities in minutes
  • Walking distance to Clapham, Stockwell and Brixton
  • Share of freehold

Property details

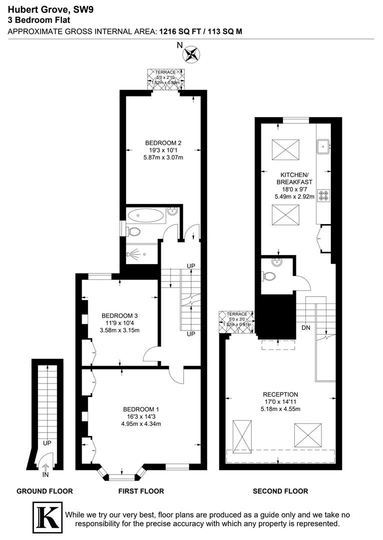
Keating Estates are proud to present to market this substantial three double bedroom split-level apartment, set across the upper floors of an attractive Victorian terraced house on the ever-popular Hubert Grove. Offering over 1,200 square feet of internal space, this impressive home boasts a versatile layout and a wonderful sense of light and flow throughout.

Arranged over multiple levels, the property has a natural, house-like feel, with well-balanced proportions and clearly defined living and sleeping spaces. The first floor is dedicated to three generous double bedrooms, all beautifully presented and filled with natural light. The principal bedroom spans the full width of the building, complete with a charming bay window and built-in storage, creating a calm and inviting retreat. The third bedroom also benefits from built-in storage, making excellent use of space.

The second bedroom is quietly positioned at the rear of the property and enjoys French doors opening onto a balcony, offering pleasant leafy views and allowing a bright and airy feel to the room. A contemporary family bathroom sits centrally on this floor, finished in neutral tones and thoughtfully designed with both a bathtub and separate walk-in shower, catering perfectly to modern living.

Upstairs, the property truly comes into its own. Glass balustrades guide you up to the top floor, enhancing the sense of openness and light as you move through the home. A bright and spacious eat-in kitchen is bathed in natural light from multiple skylights, creating a sociable hub ideal for both everyday use and entertaining. Sleek cabinetry, integrated appliances and generous worktop space are complemented by ample room for a large dining table, making this an excellent space to gather with family and friends.

The reception room is set on the uppermost level, providing a fantastic sense of separation from the rest of the property. This generous living area is flooded with light via further skylights and enjoys a peaceful ambience, with a door opening onto an additional balcony. From here, far-reaching rooftop views stretch across the surrounding Victorian terraces and beyond, offering a lovely spot to unwind at the end of the day.

Throughout the property, the split-level design enhances the feeling of space and privacy, while the abundance of natural light and neutral décor create a home that is both welcoming and easy to personalise. Additional benefits include a WC on the upper level, adding further practicality for guests.

Hubert Grove itself is a quiet residential street lined with handsome Victorian houses, contributing to the overall charm and appeal of the setting.

Situated in the heart of Clapham just an eight-minute stroll to the Northern Line at Clapham North Station and the fantastic choice of nightlife, shops and eateries available on Clapham High Street, as well as the Overground. Even closer to home are the growing number of small businesses lining Landor Road including Hopper Coffee and the incredible local bakery at the Old Post Office, just past the popular Landor pub. The purchaser will be spoilt for choice when it comes to places to dine or drink, with plenty of shops, The Picture House Cinema and the popular Venn Street Market also on offer. There is also an excellent choice of gyms in walking distance, as well as a swimming pool. The green open spaces of Clapham Common are down the road, and Abbeville Village and Clapham Old Town are also within walking distance.

When a change of scenery is required Brixton and it has to offer is just a fifteen-minute walk in the other direction with POP Brixton, the iconic Ritzy cinema, and the wonders of Brixton Village where you can sample the culinary delights of a different nation’s cuisine every day. Brixton tube station and Brixton Overground station are also available with direct trains into Victoria and the first stop on the Victoria line. Stockwell is also within a seventeen-minute walk and has access to both the Northern and Victoria tube lines.

Share of freehold.

EPC rating: C (72)

Floor plan

Floorplan

Front door to work

An estimate of the journey times to popular London destinations, using the first fast train after 8am.

  • Victoria 18 mins
  • South Bank 19 mins
  • London Bridge 20 mins
  • The City 23 mins
  • Canary Wharf 31 mins

Clapham North

0.4 mi / 7 mins walk

Route & info

ZONE 2, Northern Line underground station with trains north via Bank or Charing Cross every five minutes (approx)

Clapham High Street

0.5 mi / 11 mins walk

Route & info

ZONE 2 Overground line between Highbury and Islington and Clapham Junction with trains every 5 minutes (approx). Limited service of Southeastern trains to Victoria too.

Stockwell

0.7 mi / 14 mins walk

Route & info

ZONE 2, Northern Line and Victoria Line underground station with trains north via Bank or Charing Cross every five minutes on the Morden to Barnet/Edgeware, Northern Line (approx) and Via Victoria on the Brixton to Walhamstow Central, Victoria Line.

Brixton

0.8 mi / 17 mins walk

Route & info

Victoria Line services every three mins (approx) to Finsbury Park and Walthamstow Central.

Clapham Common

0.8 mi / 18 mins walk

Route & info

ZONE 2, Northern Line underground station with trains north via Bank or Charing Cross every five minutes (approx)

Brixton

0.8 mi / 17 mins walk

Route & info

4 trains direct to Victoria per hour and 4 to Orpington via Herne Hill

Wandsworth Road

1 mi / 22 mins walk

Route & info

ZONE 2. Overground and Southeastern services to Clapham Junction, Highbury and Islington via Canada Water and sporadically to Victoria and Battersea Park. 

Loughborough Junction

1.3 mi / 29 mins walk

Route & info

Trains north to Blackfriars (8 mins), Farrindon (15 mins) and Kings Cross/St Pancras (18 mins) and beyond up to north west London every 10 mins at rush hour.

Nine Elms

1.4 mi / 29 mins walk

Route & info

Herne Hill

1.6 mi / 36 mins walk

Route & info

ZONE 2. First Capital Connect services to Victoria, Blackfriars and Wimbledon.

Clapham area highlights

There’s something for everyone in Clapham and it draws an eclectic crowd. Clapham Common buzzes with activity and there’s a diverse mix of restaurants, shops, independent boutiques and nightlife, along with some wonderful architecture. The local schools are excellent and the transport options plentiful, with three London Underground (Northern Line) stations in close proximity and frequent London Overground trains from Clapham High Street station. It rarely feels overcrowded here, despite the abundance of things to do, and Clapham endures as one of the most desirable places to live in south London.

Clapham area guide

What's your property worth?

Whether it’s time to move or you’re just weighing up your options, we can help you work out where you stand in the market with a free sales or lettings valuation.

Value my property