Trelawn Road, SW2

3 bedroom house for sale
Freehold

Features

  • Three bedrooms
  • Large, landscaped garden
  • Edwardian house
  • Characterful features
  • Beautifully presented
  • Potential to extend STNP
  • Central Brixton and Herne Hill both a ten-minute stroll
  • Brockwell Park nearby
  • Supermarket, restaurants and cafes on the doorstep
  • Freehold

Property details

Keating Estates are proud to present to market this charming three bedroom Edwardian house on Trelawn Road, ideally positioned between vibrant Brixton and leafy Herne Hill, within easy reach of Brockwell Park and a fantastic array of local amenities.

Packed full of charm, this handsome home showcases beautiful period features including high ceilings, stained glass detailing and a striking feature fireplace, all complemented by thoughtful modern updates.

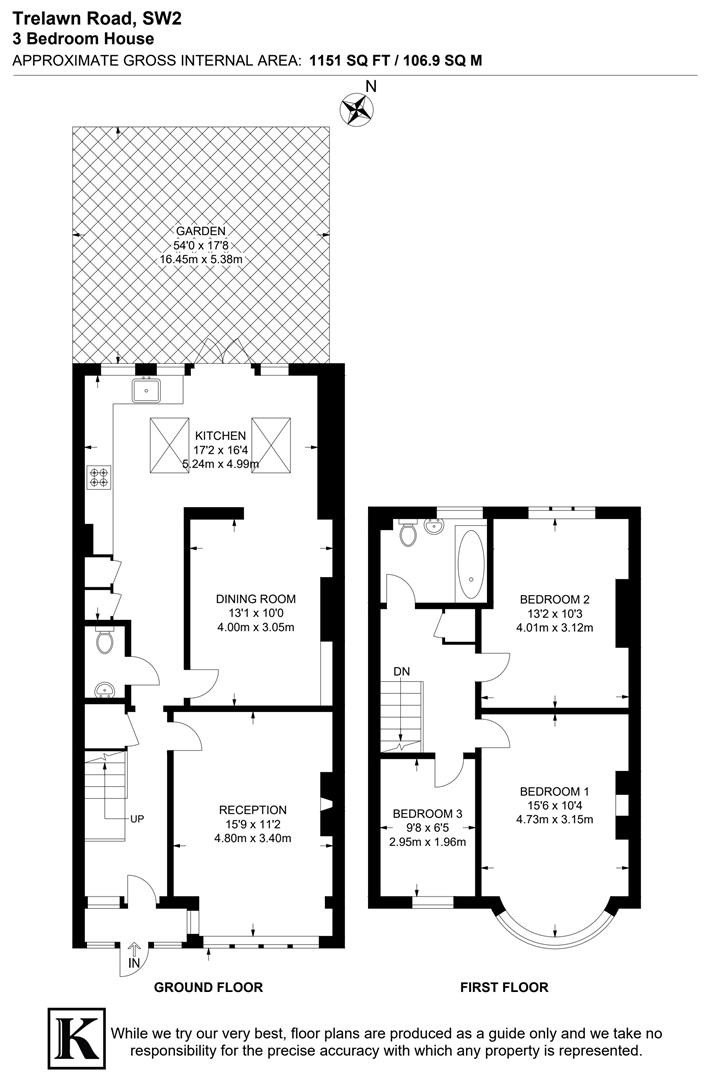
The ground floor offers a spacious reception to the front, bathed in natural light from a characterful bay window, framed by an archway, a characterful yet comfortable space in which to unwind. To the rear, a stunning extended kitchen forms the heart of the home, complete with sleek shaker-style cabinetry, integrated appliances, large skylights and bi-fold doors opening directly onto the garden—creating a seamless indoor-outdoor flow ideal for entertaining. The dining room leads off the kitchen featuring a fireplace and floating shelving, a homely space in which to host below a striking feature light to set the mood.

The landscaped garden is a true standout stretching over 16 meters and having undergone a £40,000 transformation just last year. Featuring a contemporary patio, lawn, ambient lighting, electric sockets and a decked pergola with a built-in heater, this versatile space is perfect for year-round enjoyment. The pergola has also been designed to accommodate walls, offering potential to create a summer house or garden room.

The first floor of the home provides three bedrooms. The principal is particularly appealing, set behind a striking curved bay window and providing significant wardrobe space. A further generous bedroom sits to the rear with garden views, and the third provides a versatile space, currently a guest room and home office. A neutral bathroom features a bathtub and overhead shower, ideal for a soak in the bubbles after a stroll around nearby Brockwell Park.

Completing this delightful period home is the loft space, ideal for storage but with the potential to grow into the home by extending into the space, adding further bedrooms and another bathroom if desired, subject to permissions, with precedent already set on the road.

Sandwiched between Brixton and Herne Hill, Trelawn Road is a lovely quiet street with virtually no traffic on account of it being a one-way street with an almost cul-de-sac layout. This neighbourly street has a summer street party and active local community with a vibrant street WhatsApp group and neighbours regularly meeting for drinks. Moments away is a large supermarket and various cafes, pubs and restaurants, such as Naughty Piglets, Maya’s Bakehouse and Hootananny. The green, open spaces of Brockwell Park are also a stone’s throw away with an entrance on the next street, along with its iconic 1930’s Lido and fantastic sports facilities. Just a ten-minute meander away are the vast array of amenities of Brixton offering the culinary delights of Brixton Village and a wide array of cultural entertainment choices whilst also being the first stop on the Victoria line. The amenities and transport links in the village-esq Herne Hill are also a pleasant ten-minute stroll and this incredible house will appeal to purchasers considering moving to both of these sought-after areas.

Freehold.

EPC rating: D (67)

Floor plan

Floorplan

Front door to work

An estimate of the journey times to popular London destinations, using the first fast train after 8am.

  • Victoria 21 mins
  • South Bank 26 mins
  • London Bridge 27 mins
  • The City 29 mins
  • Canary Wharf 40 mins

Brixton

0.6 mi / 13 mins walk

Route & info

Victoria Line services every three mins (approx) to Finsbury Park and Walthamstow Central.

Herne Hill

0.6 mi / 13 mins walk

Route & info

ZONE 2. First Capital Connect services to Victoria, Blackfriars and Wimbledon.

Brixton

0.6 mi / 13 mins walk

Route & info

4 trains direct to Victoria per hour and 4 to Orpington via Herne Hill

Loughborough Junction

1 mi / 21 mins walk

Route & info

Trains north to Blackfriars (8 mins), Farrindon (15 mins) and Kings Cross/St Pancras (18 mins) and beyond up to north west London every 10 mins at rush hour.

North Dulwich

1.2 mi / 28 mins walk

Route & info

ZONE 2. Southern services to London Bridge via Peckham Rye, West Croydon and Beckenham Junction via Crystal Palace.

Clapham North

1.3 mi / 28 mins walk

Route & info

ZONE 2, Northern Line underground station with trains north via Bank or Charing Cross every five minutes (approx)

Clapham High Street

1.4 mi / 30 mins walk

Route & info

ZONE 2 Overground line between Highbury and Islington and Clapham Junction with trains every 5 minutes (approx). Limited service of Southeastern trains to Victoria too.

Tulse Hill

1.4 mi / 32 mins walk

Route & info

ZONE 3. Southern and First Capital Connect services to London Bridge via Peckham Rye, Blackfriars, West Croydon, Beckenham Junction via Crystal Palace and Sutton via Wimbledon.

Stockwell

1.4 mi / 30 mins walk

Route & info

ZONE 2, Northern Line and Victoria Line underground station with trains north via Bank or Charing Cross every five minutes on the Morden to Barnet/Edgeware, Northern Line (approx) and Via Victoria on the Brixton to Walhamstow Central, Victoria Line.

Clapham Common

1.5 mi / 33 mins walk

Route & info

ZONE 2, Northern Line underground station with trains north via Bank or Charing Cross every five minutes (approx)

Brixton area highlights

Brixton is a melting pot of culture, cuisine and creativity. An explosion of inventive, new restaurants, pop-ups, fashion stores and art galleries sit alongside the many great pubs, music venues and nightclubs that have been around for years. Transport links are excellent, with London Underground (Victoria Line) trains reaching central London in 12 minutes. If you’re craving green space, Brockwell Park and its famed Art Deco lido are close by. Brixton brings together all the best things about London and is one of the most vibrant and diverse places to live south of the river.

Brixton area guide

What's your property worth?

Whether it’s time to move or you’re just weighing up your options, we can help you work out where you stand in the market with a free sales or lettings valuation.

Value my property