Mauleverer Road, SW2

4 bedroom house for sale
Freehold
£1,075,000

Features

  • Four bedrooms
  • Three bathrooms plus additional WC
  • Victorian house
  • Open-plan kitchen and dining area
  • Beautifully presented
  • Principal bedroom with ensuite and built-in storage
  • Quiet residential street within a ten-minute walk to Brixton and Clapham
  • Access to the Victoria and Northern tube lines and Clapham Overground
  • Freehold

Property details

Keating Estates are proud to present to market a stunning four bedroom, three bathroom Victorian house, set on the sought-after Mauleverer Road.

This beautifully presented home has been recently extended and comprehensively renovated, resulting in a stylish and thoughtfully designed property that effortlessly blends period charm with contemporary living. The current owners have undertaken an extensive programme of works, including a side return extension and a full overhaul, with upgrades to wiring, plumbing, double glazing, roof, plastering, flooring, boiler, kitchen and bathrooms. A recent loft conversion has added an impressive principal suite, creating a home perfectly suited to modern family life.

The ground floor is a true highlight, offering a superb balance of living and entertaining space. At the front of the property, a generous reception room is bathed in natural light, featuring bespoke joinery that adds both character and practical storage. This inviting space is ideal for cosy evenings or hosting guests. To the rear, the home opens into a stunning open-plan kitchen and dining area, designed with both functionality and style in mind. The sleek kitchen is fitted with contemporary grey cabinetry and integrated appliances. A central island provides additional workspace and casual seating, while the dining area comfortably accommodates a large table, making it perfect for family meals and social gatherings.

Large bi-folding doors seamlessly connect the interior to the garden, creating a wonderful indoor-outdoor flow. The garden itself is a low-maintenance sun trap, thoughtfully designed with a combination of patio and artificial lawn, offering the perfect setting for al fresco dining, relaxing in the sunshine, or entertaining friends and family throughout the warmer months.

The upper floors continue to impress, with well-proportioned bedrooms arranged over two levels. The first floor hosts three bedrooms, each tastefully decorated and filled with natural light, with select rooms benefiting from bespoke fitted wardrobes. A contemporary family bathroom serves this level, finished to a high standard with modern fittings and a calming, neutral palette.

The second floor is dedicated to the principal suite. This tranquil retreat offers a spacious bedroom with ample room for additional furniture, alongside built-in storage and a stylish en-suite bathroom. The elevated position enhances the sense of privacy, making it a perfect sanctuary away from the main living areas.

Throughout the home, attention to detail is evident, from the quality of the finishes to the cohesive design choices that tie each space together. The renovation has been carefully considered to maximise both comfort and efficiency, resulting in a home that is as practical as it is beautiful.

Beyond the property itself, the setting is equally appealing. The street is known for its friendly, family-oriented atmosphere, with wonderful neighbours contributing to a strong sense of community. Families will particularly appreciate the proximity to a highly regarded local school and nursery, located just a minute away, adding to the convenience of this already desirable location.

Mauleverer Road is a peaceful residential pocket sought after for its character, feel and proximity to both Brixton and Clapham. The bars and restaurants of Acre Lane, which has gained huge popularity in recent years, are just a two-minute stroll away, where purchasers will enjoy having neighbourhood favourites such as Blank Coffee, Knife and the Hope & Anchor close by, as well as the Instagram-favourite bakery Aries Bakehouse and large supermarkets including Tesco, Lidl and Sainsbury’s. Within an eleven-minute stroll down the road is everything that Brixton has to offer, from music venues and the extremely popular Brixton Village to large brand shops and excellent transport links. The vibrant and diverse Clapham High Street is an eleven-minute walk in the other direction, offering great nightlife and culinary delights. Potential purchasers will benefit from both the Northern Line (Clapham North, Clapham Common and Clapham South tube stations) and the Victoria Line (Brixton tube station). With the wonderful green spaces of Brockwell Park and Clapham Common within easy reach, plus the pretty eateries of Abbeville Village, the location cannot be overstated.

Freehold.

EPC rating: C (72)

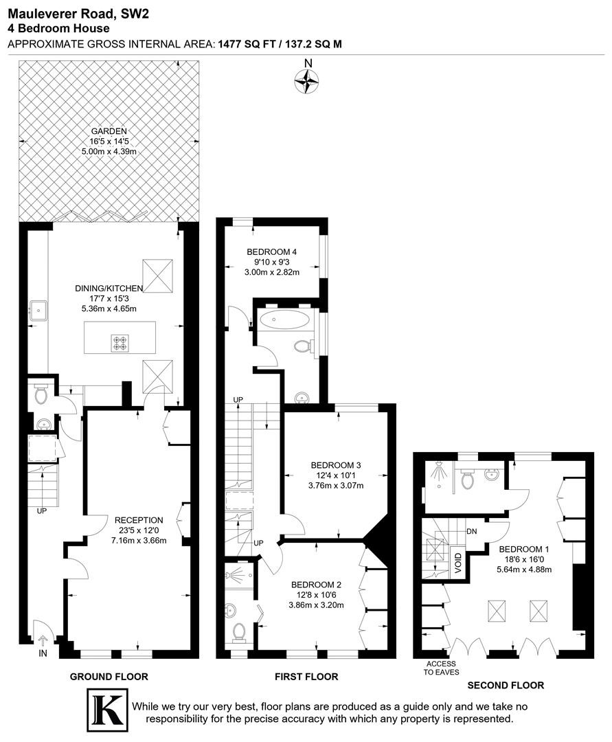
Floor plan

Floorplan

Front door to work

An estimate of the journey times to popular London destinations, using the first fast train after 8am.

  • Victoria 25 mins
  • South Bank 26 mins
  • London Bridge 27 mins
  • The City 30 mins
  • Canary Wharf 36 mins

Clapham North

0.7 mi / 14 mins walk

Route & info

ZONE 2, Northern Line underground station with trains north via Bank or Charing Cross every five minutes (approx)

Clapham High Street

0.7 mi / 16 mins walk

Route & info

ZONE 2 Overground line between Highbury and Islington and Clapham Junction with trains every 5 minutes (approx). Limited service of Southeastern trains to Victoria too.

Clapham Common

0.8 mi / 18 mins walk

Route & info

ZONE 2, Northern Line underground station with trains north via Bank or Charing Cross every five minutes (approx)

Brixton

0.9 mi / 18 mins walk

Route & info

Victoria Line services every three mins (approx) to Finsbury Park and Walthamstow Central.

Brixton

0.9 mi / 20 mins walk

Route & info

4 trains direct to Victoria per hour and 4 to Orpington via Herne Hill

Stockwell

1.2 mi / 26 mins walk

Route & info

ZONE 2, Northern Line and Victoria Line underground station with trains north via Bank or Charing Cross every five minutes on the Morden to Barnet/Edgeware, Northern Line (approx) and Via Victoria on the Brixton to Walhamstow Central, Victoria Line.

Clapham South

1.2 mi / 27 mins walk

Route & info

ZONE 2 (and 3), Northern Line underground station with trains north via Bank or Charing Cross every five minutes (approx)

Herne Hill

1.2 mi / 27 mins walk

Route & info

ZONE 2. First Capital Connect services to Victoria, Blackfriars and Wimbledon.

Wandsworth Road

1.3 mi / 27 mins walk

Route & info

ZONE 2. Overground and Southeastern services to Clapham Junction, Highbury and Islington via Canada Water and sporadically to Victoria and Battersea Park. 

Loughborough Junction

1.5 mi / 32 mins walk

Route & info

Trains north to Blackfriars (8 mins), Farrindon (15 mins) and Kings Cross/St Pancras (18 mins) and beyond up to north west London every 10 mins at rush hour.

Brixton area highlights

Brixton is a melting pot of culture, cuisine and creativity. An explosion of inventive, new restaurants, pop-ups, fashion stores and art galleries sit alongside the many great pubs, music venues and nightclubs that have been around for years. Transport links are excellent, with London Underground (Victoria Line) trains reaching central London in 12 minutes. If you’re craving green space, Brockwell Park and its famed Art Deco lido are close by. Brixton brings together all the best things about London and is one of the most vibrant and diverse places to live south of the river.

Brixton area guide

What's your property worth?

Whether it’s time to move or you’re just weighing up your options, we can help you work out where you stand in the market with a free sales or lettings valuation.

Value my property