Brixton is a melting pot of culture, cuisine and creativity. An explosion of inventive, new restaurants, pop-ups, fashion stores and art galleries sit alongside the many great pubs, music venues and nightclubs that have been around for years. Transport links are excellent, with London Underground (Victoria Line) trains reaching central London in 12 minutes. If you’re craving green space, Brockwell Park and its famed Art Deco lido are close by. Brixton brings together all the best things about London and is one of the most vibrant and diverse places to live south of the river.
Brixton area guide









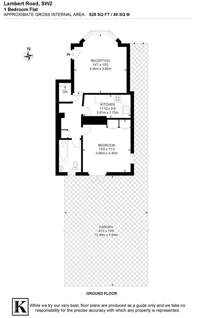
Lambert Road, SW2
Features
- One double bedroom
- South-facing private garden
- Double-fronted, end-of-terrace Victorian conversion
- Characterful features
- Planning permission previously approved to extend
- Access to a large cellar for storage
- Desirable pocket close to Brixton, Clapham and Brockwell Park
- Victoria and Northern Lines within walking distance
- Share of freehold. Chain-free
Property details
Keating Estates are delighted to present to market a charming one bedroom apartment with a private South-facing garden, set within a handsome double-fronted, end-of-terrace Victorian property on the ever-popular Lambert Road. Brimming with period character, generous proportions and contemporary touches, this appealing home offers both comfort and style, with the benefit of outdoor space and excellent storage.
This fantastic apartment makes a striking first impression with the kerb appeal of its grand Victorian façade, complete with blue front door framed by a stone archway. Set to the front of the home, the inviting reception room exudes period charm, with a large bay window adorned with plantation shutters, high ceilings with ornate cornicing, and original wooden floorboards underfoot. A wonderfully bright and airy space, this elegant room offers ample room for both a comfortable lounge and a dining table, making it an ideal setting for entertaining or unwinding at the end of the day.
A couple of steps lead down to the separate kitchen, smartly finished with gloss white cabinetry wrapping around to maximise storage. Black worktops with under-lighting complement the sleek design and echo the neutral tones of the grey tiled floor. A sink beneath the window enjoys leafy views over the side passage, creating a pleasant and practical place to cook.
Peacefully tucked away to the rear, the spacious bedroom is a tranquil retreat. Generous fitted wardrobes enhance the practicality, with plenty of room remaining for a desk or dressing table if desired. Dual-aspect windows and French doors provide an abundance of natural light, opening directly onto the garden.
This property’s South-facing garden is a true highlight, a sunny haven offering private outdoor space with secure side access, ideal for bikes or hosting guests for BBQs. An initial patio leads up to a raised lawn, bordered by planting beds, before culminating in a decked seating area to the very rear, perfect for alfresco dining or entertaining friends.
Back inside, the bathroom is sleek and contemporary, styled in luxuriously large grey tiles to create a spa-like atmosphere. A bathtub with overhead rain shower provides the perfect spot to indulge in a relaxing soak after a day at nearby Brockwell Park. Additional benefits include a spacious hallway and access to a large cellar, providing ample storage and ensuring this home remains clutter-free.
If all this weren't enough, there is also the potential to extend subject to necessary permissions, growing into the property in the future and adding further value. Planning permission has previously been approved to extend the property, turning the home into a two bedroom apartment, proposed plans available upon request.
Lambert Road is a quiet and attractive residential street in a fantastic spot. In one direction, purchasers will benefit from all that Brixton offers, from the celebrated cuisine of Brixton Village to the music venues and nightlife the area is famous for. There are local amenities within a two-minute walk, as well as a selection of pubs, bars, restaurants and supermarkets on Brixton Hill and Effra Road including Naughty Piglets, Stir Coffee, Pizza Brixton and large brand supermarkets. It is also a ten-minute stroll to the Green Flag awarded Brockwell Park, with its green rolling hills, ornamental gardens, sports facilities and iconic 1930s Lido. Brixton tube station is a ten-twelve minute walk down the hill, and there is a bus stop within a stone’s throw, with numerous buses that run all day and night, taking no more than a couple of minutes down Brixton Hill.
Clapham High Street and Abbeville Village are just five-minute’s further in the opposite direction, offering excellent transport links with three Northern Line underground stations, Clapham High Street station on the Overground and numerous bus routes to other areas of London. Venn Street and its multitude of restaurants and bars, and the green open spaces of Clapham Common are all within walking distance. Abbeville Village boasts the quaint, boutique shops, cafes and restaurants the area is known for.
This beautifully balanced home combines period character with modern comforts and exceptional outdoor space, making it an outstanding opportunity for buyers seeking a stylish and practical property in a prime location.
Share of freehold. Chain-free.
EPC rating: D (58)
Brixton
0.6 mi / 13 mins walk
Route & infoVictoria Line services every three mins (approx) to Finsbury Park and Walthamstow Central.
Brixton
0.7 mi / 15 mins walk
Route & info4 trains direct to Victoria per hour and 4 to Orpington via Herne Hill
Herne Hill
0.9 mi / 19 mins walk
Route & infoZONE 2. First Capital Connect services to Victoria, Blackfriars and Wimbledon.
Clapham North
1 mi / 22 mins walk
Route & infoZONE 2, Northern Line underground station with trains north via Bank or Charing Cross every five minutes (approx)
Clapham Common
1.1 mi / 24 mins walk
Route & infoZONE 2, Northern Line underground station with trains north via Bank or Charing Cross every five minutes (approx)
Clapham High Street
1.1 mi / 24 mins walk
Route & infoZONE 2 Overground line between Highbury and Islington and Clapham Junction with trains every 5 minutes (approx). Limited service of Southeastern trains to Victoria too.
Loughborough Junction
1.2 mi / 26 mins walk
Route & infoTrains north to Blackfriars (8 mins), Farrindon (15 mins) and Kings Cross/St Pancras (18 mins) and beyond up to north west London every 10 mins at rush hour.
Streatham Hill
1.3 mi / 30 mins walk
Route & infoZONE 2. Southern services to Victoria via Clapham Junction, London Bridge, Crystal Palace and Sutton.
Stockwell
1.4 mi / 30 mins walk
Route & infoZONE 2, Northern Line and Victoria Line underground station with trains north via Bank or Charing Cross every five minutes on the Morden to Barnet/Edgeware, Northern Line (approx) and Via Victoria on the Brixton to Walhamstow Central, Victoria Line.
Clapham South
1.5 mi / 33 mins walk
Route & infoZONE 2 (and 3), Northern Line underground station with trains north via Bank or Charing Cross every five minutes (approx)
Brixton area highlights





Similar properties
What's your property worth?
Whether it’s time to move or you’re just weighing up your options, we can help you work out where you stand in the market with a free sales or lettings valuation.
Value my property