Killyon Road, SW8

3 bedroom flat for sale
Share of Freehold
£725,000

Features

  • Three bedrooms
  • East facing private garden
  • Over 900 sqft
  • Bright and airy
  • Demised cellar
  • Clapham Common and Larkhall Park within walking distance
  • Wandsworth Road Overground Station a five-minute walk
  • Northern Line Tube a ten-minute stroll away
  • Chain-free
  • Share of freehold

Property details

Keating Estates are proud to present this charming three-bedroom Victorian conversion apartment with an east-facing private garden, set within an elegant period property on Killyon Road, a highly sought-after residential street, just a five-minute walk from Wandsworth Road Overground station and a ten-minute walk to Clapham High Street and the Tube.

As you approach the property, the handsome Victorian façade sets a welcoming tone, offering instant kerb appeal with its classic brickwork and decorative detailing, featuring an attractive archway leading to the front door.

The heart of the property is the open-plan reception room, positioned at the rear of the apartment. This sociable space is perfect for modern living, with clearly defined areas for relaxing, dining, and cooking. The L-shaped kitchen is fitted with neutral cabinetry complemented by contrasting dark worktops, offering ample storage and preparation space. There is comfortable room to dine, making it an ideal setting for entertaining friends or enjoying everyday meals, while the lounge area provides a cosy place to unwind.

French doors open directly from the reception room onto the garden, allowing an abundance of natural light to flood the space and creating a seamless flow between indoors and out. The garden is a real highlight of the property. East-facing and beautifully enclosed by brick walls, it offers a private and tranquil outdoor retreat. A patio area to the rear provides the perfect spot for morning coffee, alfresco dining, or simply enjoying the sunshine.

Positioned at the front of the property is the principal bedroom, a bright and inviting retreat enhanced by a square bay window that draws in generous natural light. The proportions allow for comfortable furnishings while maintaining an airy atmosphere. The second bedroom enjoys pleasant views over the garden. The third bedroom looks out onto the side return, offering flexibility for use as a guest bedroom, nursery, or home office. All three bedrooms are decorated in neutral tones with plush grey carpet, providing a blank canvas ready for a new owner to personalise.

The centrally located bathroom features a shower over the bath, contemporary grey tiling, and a window that provides natural ventilation and light. Its position within the apartment makes it easily accessible from all rooms, adding to the practical layout of the home.

Completing the accommodation is the added benefit of a cellar, offering valuable storage space.

The location is equally impressive. This property is ideally situated on the desirable Killyon Road, offering excellent transport links. Wandsworth Road Overground station is just a five-minute walk away, providing swift connections across the city, while Clapham North tube station is a ten-minute stroll, giving easy access to the Northern Line. Excellent local bus services and the Super Cycle Highway through Clapham provide rapid access to the City, West End, and Canary Wharf. Residents will enjoy the vibrant amenities of Clapham High Street, with its array of shops, cafés, bars, and restaurants, as well as the boutique shops, cafés, and eateries of Clapham Old Town and Venn Street. For green space lovers, Clapham Common, Battersea Park, and Larkhall Park are all within easy walking distance.

Share of Freehold. Chain-free.

EPC rating: C (71)

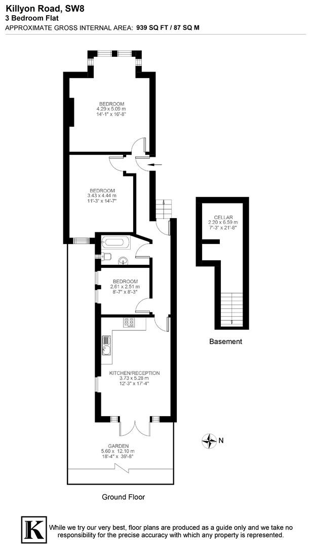
Floor plan

Floorplan

Front door to work

An estimate of the journey times to popular London destinations, using the first fast train after 8am.

Clapham area highlights

There’s something for everyone in Clapham and it draws an eclectic crowd. Clapham Common buzzes with activity and there’s a diverse mix of restaurants, shops, independent boutiques and nightlife, along with some wonderful architecture. The local schools are excellent and the transport options plentiful, with three London Underground (Northern Line) stations in close proximity and frequent London Overground trains from Clapham High Street station. It rarely feels overcrowded here, despite the abundance of things to do, and Clapham endures as one of the most desirable places to live in south London.

Clapham area guide

What's your property worth?

Whether it’s time to move or you’re just weighing up your options, we can help you work out where you stand in the market with a free sales or lettings valuation.

Value my property