Maplestead Road, SW2

2 bedroom flat for sale
Share of Freehold
£600,000
Offers Over

Features

  • Two double bedrooms
  • Victorian conversion
  • Private south-east facing garden
  • Beautifully presented
  • Demised cellar
  • Moments to a park at the end of the road
  • Local shops, cafes, bakeries, Tavern and schools
  • Amenities and transport links of Brixton, Streatham and Herne Hill
  • Share of freehold
  • Chain-free

Property details

Keating Estates are proud to present to market a beautifully presented two double bedroom flat with a private south-east facing rear garden, occupying the ground floor of one of the handsome Victorian terraces on Maplestead Road, a popular neighbourly street, perfectly located for the amenities and transport links in central Brixton, Streatham Hill and Herne Hill, a stone’s throw from the green spaces of Holmewood Gardens.

This charming home offers a wonderful balance of period character and modern comfort, with a thoughtfully arranged open-plan layout at its heart. The reception space is bright and inviting, enhanced by a large skylight and glazing to the rear which floods the room with natural light throughout the day. There is ample room for both relaxing and dining, with clearly defined zones that flow seamlessly into one another, creating a sociable and versatile living environment ideal for entertaining or everyday living.

The contemporary kitchen is neatly integrated along one wall, offering sleek cabinetry, integrated appliances and generous worktop space. Positioned to overlook the living area, it allows for easy interaction with guests while cooking, reinforcing the open-plan feel of the home.

French doors open directly onto the private garden, a true highlight of the property. South-east facing, this outdoor space enjoys plenty of sunshine and has been beautifully landscaped to provide a mix of paved seating areas and raised planting beds. It is the perfect spot for al fresco dining, morning coffee or unwinding in the warmer months, offering a peaceful retreat from city life.

The two double bedrooms are set towards the front of the property, both generously proportioned and finished in a calming, neutral palette. The principal bedroom is particularly impressive, featuring high ceilings, large bay windows and attractive period detailing including cornicing, a ceiling rose, exposed wooden floorboards and a decorative fireplace, creating a tranquil and elegant space. Built-in wardrobes provide excellent storage without compromising on style. The second bedroom is also a comfortable double, currently arranged as a child’s room, and benefits from its own built-in wardrobe, making it equally well suited as a guest room, nursery or home office.

A stylish family bathroom is centrally located, complete with a bathtub and overhead shower, modern fittings and a clean, contemporary finish. Additional storage is provided via a cellar, offering valuable extra space rarely found in similar apartments.

Throughout the home, thoughtful design choices and tasteful décor combine to create a warm and cohesive aesthetic, with soft tones, natural textures and carefully selected finishes enhancing the sense of comfort and style. The layout has been carefully considered to maximise both light and space, resulting in a home that feels both practical and welcoming.

The area is highly sought after for its character, feel and proximity to multiple areas. Maplestead Road itself is a quiet residential street moments from the green open spaces of Holmewood Gardens. This pretty garden square is essentially a large garden you do not have to tend, with a designated area for dog exercise, a children’s playground and open grass for communal events, a leafy spot that brings local residents together. The Neighbourhood Association has planted an orchard and is actively involved in caring for the area, as well as organising many social events including summer parties, winter festivals and Halloween activities. The gardens have also played host to free concerts from the Brixton Chamber Orchestra and the 606 Jazz Club.

On the doorstep are a variety of cafes, shops, bakeries and the popular Elm Park Tavern just a six-minute walk away. The amenities of Brixton Hill are a twelve-minute stroll, with central Brixton, Brixton Village, The Ritzy and the start of the Victoria line all within easy reach. A ten-minute walk brings you to Brockwell Park; continue a pleasant amble through the park to reach Herne Hill a further ten minutes away. In the other direction, Streatham Hill high street is an eleven-minute walk, with its multitude of restaurants and bars and direct trains into Clapham Junction, Victoria and London Bridge. With the South Circular nearby, the location is also perfect for those with a vehicle, or simply hop on one of the many day and night buses that whisk you down Brixton Hill, over to Clapham or into the city beyond.

Share of freehold.

Chain-free.

EPC rating: C (71)

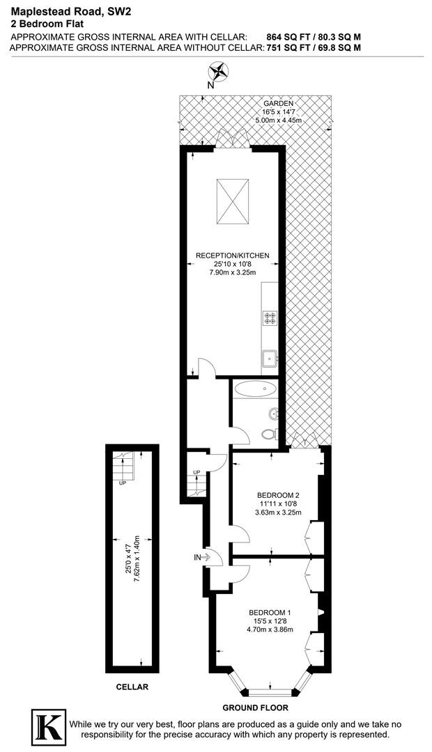
Floor plan

Floorplan

Front door to work

An estimate of the journey times to popular London destinations, using the first fast train after 8am.

  • Victoria 33 mins
  • The City 37 mins
  • South Bank 39 mins
  • London Bridge 40 mins
  • Canary Wharf 53 mins

Streatham Hill

0.8 mi / 19 mins walk

Route & info

ZONE 2. Southern services to Victoria via Clapham Junction, London Bridge, Crystal Palace and Sutton. 

Tulse Hill

0.9 mi / 21 mins walk

Route & info

ZONE 3. Southern and First Capital Connect services to London Bridge via Peckham Rye, Blackfriars, West Croydon, Beckenham Junction via Crystal Palace and Sutton via Wimbledon.

Herne Hill

1 mi / 22 mins walk

Route & info

ZONE 2. First Capital Connect services to Victoria, Blackfriars and Wimbledon.

Brixton

1.2 mi / 25 mins walk

Route & info

Victoria Line services every three mins (approx) to Finsbury Park and Walthamstow Central.

Brixton

1.3 mi / 28 mins walk

Route & info

4 trains direct to Victoria per hour and 4 to Orpington via Herne Hill

Clapham South

1.5 mi / 32 mins walk

Route & info

ZONE 2 (and 3), Northern Line underground station with trains north via Bank or Charing Cross every five minutes (approx)

West Norwood

1.5 mi / 34 mins walk

Route & info

ZONE 3. Southern Service to and from London Victoria, London Bridge, Beckenham Junction and Sutton via West Croydon, with many services calling at Crystal Palace, which is two stops away to the south. The typical journey time into London Victoria is about 25 minutes.

Clapham Common

1.5 mi / 33 mins walk

Route & info

ZONE 2, Northern Line underground station with trains north via Bank or Charing Cross every five minutes (approx)

West Dulwich

1.5 mi / 34 mins walk

Route & info

ZONE 3. Southeastern service to London Victoria and Orpington.

Clapham North

1.6 mi / 33 mins walk

Route & info

ZONE 2, Northern Line underground station with trains north via Bank or Charing Cross every five minutes (approx)

Brixton area highlights

Brixton is a melting pot of culture, cuisine and creativity. An explosion of inventive, new restaurants, pop-ups, fashion stores and art galleries sit alongside the many great pubs, music venues and nightclubs that have been around for years. Transport links are excellent, with London Underground (Victoria Line) trains reaching central London in 12 minutes. If you’re craving green space, Brockwell Park and its famed Art Deco lido are close by. Brixton brings together all the best things about London and is one of the most vibrant and diverse places to live south of the river.

Brixton area guide

What's your property worth?

Whether it’s time to move or you’re just weighing up your options, we can help you work out where you stand in the market with a free sales or lettings valuation.

Value my property