Hayter Road, SW2

2 bedroom flat for sale
Share of Freehold
£625,000

Features

  • Two double bedrooms
  • Private terrace and garden
  • Characterful Edwardian conversion
  • First floor, split-level flat
  • Over 875 square feet
  • Bright and airy
  • Desirable residential road
  • Central Brixton a five-minute stroll
  • Victoria and Northern Lines
  • Chain-free and share of freehold

Property details

Keating Estates are proud to present this spacious and unique two double bedroom, split-level apartment with a private garden, set over the upper floors of a handsome Edwardian property. Situated on the desirable Hayter Road, a leafy residential street within the catchment area for Sudbourne School.

With over 875 square foot of internal living sapce this spacious flat has a lovely rustic style that makes the most of its large rooms. Split over two floors, the home benefits from additional light and privacy, with a large landing area adding to the airy feel. The property has a versatile layout which could be altered in order to suit a purchaser's needs.

Set to the rear, the reception room is packed full of characterful grandeur with high, corniced ceilings, original wooden floorboards and the focal point of a feature fireplace. Drenched in light from almost floor-to-ceiling French doors, this is an inviting room in which to unwind, throwing open the doors in the summer to allow the fresh air to breeze in.

The French doors lead to a step-out terrace, perfect for enjoying a morning coffee, with steps leading down to the private garden. Decked for ease of maintenance the garden provides a lovely spot in which to while away the summer and host BBQs, with the potential to dress with potted plants to add further greenery. A gate to the rear is ideal for those with bikes, or bikes can be secured in the entryway.

Set behind a pretty bay window with stained glass touches, the kitchen has ample storage within shaker cabinetry, with worktops wrapping around. A practical space with lovely features, should the purchaser wish to upgrade the space to suit their individual needs in the future.

Both bedrooms are spacious doubles, set on differing floors. The bedroom on the first floor, like the reception room, has great dimensions and is packed full of character; with beautiful wooden flooring, striking cornicing, a square bay window and feature fireplace, creating a calming room. Stairs wind up to the second bedroom, another large space. This converted loft bedroom has a soothing ambience with lovely light thanks to multiple skylights boasting views across the rooftops to the city in the distance. Tucked peacefully away at the top of the home, this room benefits from further storage within the eaves, and there is also further storage on the downstairs landing. Completing this beautiful property, the bathroom is traditionally styled with attractive tiling adding a vibrant touch of colour, equipped with a bathtub and overhead shower. The WC sits adjacent, with the potential to combine into one larger room or keep separate to aid with busy morning routines.

All in all, a versatile home packed full of character with the best of many worlds; over 875 square feet of bright space, split over the upper floors whilst still having private outside space, with many preserved original features, in a great location.

This flat has the huge benefit of being located on Hayter Road, within a sought-after residential pocket of streets tucked away off Brixton Hill between Brixton and Clapham, and within the catchment areas for both Sudbourne and Corpus Christi Schools. Situated close to the vibrant heart of Brixton, a seven-minute stroll from first stop on the Victoria Line at the tube with the vast array of Brixton’s amenities on hand, including The Ritzy, Windrush Square, Brixton Village and POP Brixton. This property is perfect for anyone who wants to be close to the action but would prefer to retain a sense of calm. In the other direction, purchasers will benefit from everything that Clapham has to offer within a ten-minute stroll, the multitude of restaurants and bars and excellent transport links with two Northern Line underground stations; Clapham Common and Clapham North tube stations. Brockwell Park and its iconic 1930’s Lido are a similar distance. A seventeen-minute walk through the park brings you to Herne Hill Overground station and the many pubs and eateries of leafy Herne Hill.

Share of freehold. Chain-free.

EPC rating: C (69)

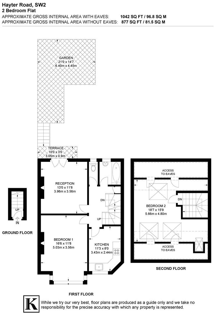
Floor plan

Floorplan

Front door to work

An estimate of the journey times to popular London destinations, using the first fast train after 8am.

  • Victoria 18 mins
  • South Bank 23 mins
  • London Bridge 24 mins
  • The City 26 mins
  • Canary Wharf 37 mins

Brixton

0.4 mi / 9 mins walk

Route & info

Victoria Line services every three mins (approx) to Finsbury Park and Walthamstow Central.

Brixton

0.5 mi / 12 mins walk

Route & info

4 trains direct to Victoria per hour and 4 to Orpington via Herne Hill

Clapham North

0.9 mi / 20 mins walk

Route & info

ZONE 2, Northern Line underground station with trains north via Bank or Charing Cross every five minutes (approx)

Herne Hill

1 mi / 21 mins walk

Route & info

ZONE 2. First Capital Connect services to Victoria, Blackfriars and Wimbledon.

Clapham High Street

1 mi / 21 mins walk

Route & info

ZONE 2 Overground line between Highbury and Islington and Clapham Junction with trains every 5 minutes (approx). Limited service of Southeastern trains to Victoria too.

Loughborough Junction

1 mi / 23 mins walk

Route & info

Trains north to Blackfriars (8 mins), Farrindon (15 mins) and Kings Cross/St Pancras (18 mins) and beyond up to north west London every 10 mins at rush hour.

Clapham Common

1.1 mi / 24 mins walk

Route & info

ZONE 2, Northern Line underground station with trains north via Bank or Charing Cross every five minutes (approx)

Stockwell

1.2 mi / 26 mins walk

Route & info

ZONE 2, Northern Line and Victoria Line underground station with trains north via Bank or Charing Cross every five minutes on the Morden to Barnet/Edgeware, Northern Line (approx) and Via Victoria on the Brixton to Walhamstow Central, Victoria Line.

Wandsworth Road

1.5 mi / 33 mins walk

Route & info

ZONE 2. Overground and Southeastern services to Clapham Junction, Highbury and Islington via Canada Water and sporadically to Victoria and Battersea Park. 

Clapham South

1.7 mi / 37 mins walk

Route & info

ZONE 2 (and 3), Northern Line underground station with trains north via Bank or Charing Cross every five minutes (approx)

Brixton area highlights

Brixton is a melting pot of culture, cuisine and creativity. An explosion of inventive, new restaurants, pop-ups, fashion stores and art galleries sit alongside the many great pubs, music venues and nightclubs that have been around for years. Transport links are excellent, with London Underground (Victoria Line) trains reaching central London in 12 minutes. If you’re craving green space, Brockwell Park and its famed Art Deco lido are close by. Brixton brings together all the best things about London and is one of the most vibrant and diverse places to live south of the river.

Brixton area guide

What's your property worth?

Whether it’s time to move or you’re just weighing up your options, we can help you work out where you stand in the market with a free sales or lettings valuation.

Value my property