Brixton is a melting pot of culture, cuisine and creativity. An explosion of inventive, new restaurants, pop-ups, fashion stores and art galleries sit alongside the many great pubs, music venues and nightclubs that have been around for years. Transport links are excellent, with London Underground (Victoria Line) trains reaching central London in 12 minutes. If you’re craving green space, Brockwell Park and its famed Art Deco lido are close by. Brixton brings together all the best things about London and is one of the most vibrant and diverse places to live south of the river.
Brixton area guide














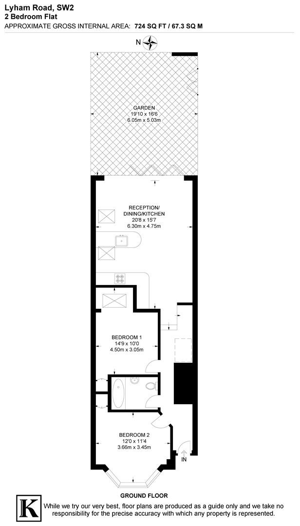
Lyham Road, SW2
Features
- Two double bedrooms
- Landscaped walled garden
- End-of terrace Victorian conversion
- Private entrance
- Over 720 square feet
- Beautifully presented
- Local amenities of Acre Lane
- Clapham and Brixton centres both in under fifteen-minutes
- Abbeville Village and Clapham Common a short stroll away
- Chain-free
Property details
Keating Estates are proud to present to market a stylish and spacious two double bedroom apartment with a landscaped garden and a private entrance. Arranged over the ground floor a Victorian property on Lyham Road, a residential street conveniently located between Clapham and Brixton centres with vibrant local amenities.
Arranged to maximise space and comfort, the sense of style and space becomes immediately apparent as you enter the home through the private entrance. The thoughtful layout and tasteful finishes make this a truly desirable home in a sought-after pocket.
Towards the rear of the property, the impressive open-plan reception and kitchen forms the heart of the home, an ideal setting for entertaining and everyday living. Generous in size and bathed in natural light from the numerous sky lights and folding glass doors, this multifunctional space combines contemporary style with homely comfort. The kitchen area is smartly fitted with sleek gloss cabinetry and integrated appliances, offering ample storage and worktop space, inclusive of a peninsular with space for stools should a breakfast bar be desired. Whether you’re hosting guests around the large table, preparing meals, or simply relaxing after a long day, this versatile hub is designed for flexibility and flow.
Bi-folding doors lead out onto the private walled garden, allowing for seamless indoor-outdoor living, particularly enjoyable in the warmer months. Bathed in sun from morning to afternoon, this well-sized garden is perfect for al fresco dining, gardening, or enjoying a peaceful retreat in the open air. There’s plenty of room for outdoor furniture, planting beds and a BBQ area, with the added benefit of gates leading out to the street, ideal for hosting or those with bikes.
Both bedrooms are spacious doubles of similar proportions, a rarity for period conversions. The principal bedroom has a particularly serene ambience, located centrally within the home, offering peace and comfort. With generous proportions, fitted wardrobes and a dressing area, this is a restful space that benefits from soothing natural light from a skylight above, as well as a quiet setting away from the street. Located at the front of the property is another excellent double room, also with fitted wardrobes, that could serve as a second bedroom, guest room, or a spacious home office. The charming bay window with cafe style shutters adds character and floods the room with light, creating an inviting atmosphere. The room’s proportions offer great versatility, while the separation from the living space provides additional privacy. Set conveniently between both bedrooms, the bathroom is fitted with a bathtub and overhead shower. The clean, modern design and practical layout ensure this space meets the needs of contemporary living.
This stunning home is situated in a vibrant and well-connected part of town, ideally located in between Clapham High Street and Brixton with the best of both within easy walking distance. The bars and restaurants of Acre Lane, which has gained huge popularity in recent years is just a two-minute stroll where purchasers will enjoy having neighbourhood favourites such as Blank Coffee, Knife and the Hope & Anchor close by, as well as the Instagram favourite bakery - Aries Bakehouse and large supermarkets including Tesco, Lidl and Sainsbury’s. Within a fifteen-minute stroll down the road is everything that Brixton has to offer, from music venues and the extremely popular Brixton Village to large brand shops and cracking transport links. Abbeville Village with its boutique-like shops and cafes is easily reached, around ten-minutes in the other direction and the vibrant and diverse Clapham High Street is a twelve-minute walk, offering great nightlife and culinary delights.
The low traffic neighbourhood (LTN) further up the road limits amount of traffic passing the property. The transport links are excellent and potential purchasers will benefit from the Northern Line (Clapham North and Clapham Common tube stations); the Victoria Line (Brixton tube station); and London Overground (Clapham High Street station),- alongside multiple day and night bus routes providing swift access across the city, just a short bus ride to Clapham Junction train station. The rolling green spaces of Clapham Common are just a fifteen-minute stroll and Brockwell Park with its iconic 1930s Lido is also within easy reach.
There are few properties in the area that have as many positive attributes, from the unique style, fantastic entertaining space, enviable outdoor space, and the proximity to all the action the area has to offer.
Chain-free.
EPC rating: C (73)
Clapham North
0.6 mi / 13 mins walk
Route & infoZONE 2, Northern Line underground station with trains north via Bank or Charing Cross every five minutes (approx)
Clapham High Street
0.7 mi / 15 mins walk
Route & infoZONE 2 Overground line between Highbury and Islington and Clapham Junction with trains every 5 minutes (approx). Limited service of Southeastern trains to Victoria too.
Clapham Common
0.7 mi / 17 mins walk
Route & infoZONE 2, Northern Line underground station with trains north via Bank or Charing Cross every five minutes (approx)
Brixton
0.9 mi / 18 mins walk
Route & infoVictoria Line services every three mins (approx) to Finsbury Park and Walthamstow Central.
Brixton
0.9 mi / 20 mins walk
Route & info4 trains direct to Victoria per hour and 4 to Orpington via Herne Hill
Stockwell
1.2 mi / 25 mins walk
Route & infoZONE 2, Northern Line and Victoria Line underground station with trains north via Bank or Charing Cross every five minutes on the Morden to Barnet/Edgeware, Northern Line (approx) and Via Victoria on the Brixton to Walhamstow Central, Victoria Line.
Wandsworth Road
1.2 mi / 26 mins walk
Route & infoZONE 2. Overground and Southeastern services to Clapham Junction, Highbury and Islington via Canada Water and sporadically to Victoria and Battersea Park.
Clapham South
1.3 mi / 28 mins walk
Route & infoZONE 2 (and 3), Northern Line underground station with trains north via Bank or Charing Cross every five minutes (approx)
Herne Hill
1.3 mi / 28 mins walk
Route & infoZONE 2. First Capital Connect services to Victoria, Blackfriars and Wimbledon.
Loughborough Junction
1.4 mi / 31 mins walk
Route & infoTrains north to Blackfriars (8 mins), Farrindon (15 mins) and Kings Cross/St Pancras (18 mins) and beyond up to north west London every 10 mins at rush hour.
Brixton area highlights





Similar properties
What's your property worth?
Whether it’s time to move or you’re just weighing up your options, we can help you work out where you stand in the market with a free sales or lettings valuation.
Value my property