Brixton is a melting pot of culture, cuisine and creativity. An explosion of inventive, new restaurants, pop-ups, fashion stores and art galleries sit alongside the many great pubs, music venues and nightclubs that have been around for years. Transport links are excellent, with London Underground (Victoria Line) trains reaching central London in 12 minutes. If you’re craving green space, Brockwell Park and its famed Art Deco lido are close by. Brixton brings together all the best things about London and is one of the most vibrant and diverse places to live south of the river.
Brixton area guide














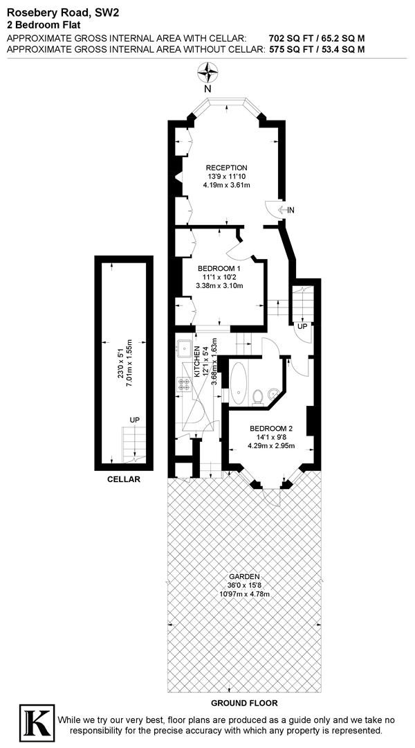
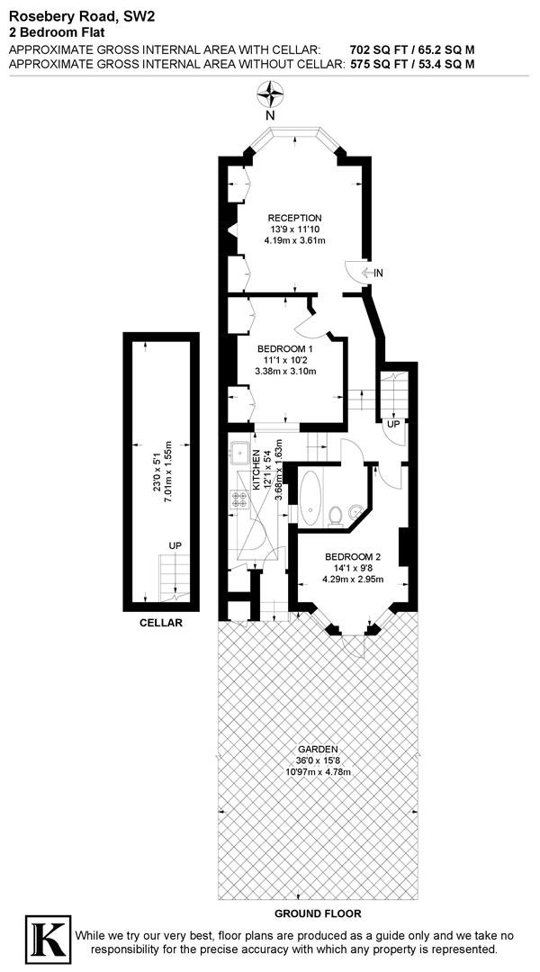
Rosebery Road, SW2
Features
- Two bedrooms
- Private garden
- Victorian conversion
- Generous storage including a cellar
- Bright and airy ambience
- Neighbourly residential street
- Local amenities nearby
- Walking distance to Clapham, Brixton and Abbeville Village
- Northern and Victoria Lines
- Day and night bus routes from the top of the road
Property details
Keating Estates are proud to present to market this charming two-bedroom ground floor garden flat, nestled within an attractive period conversion on Rosebery Road, in a desirable residential pocket between Clapham and Brixton. Offering a delightful blend of period character and stylish modern finishes, this inviting property benefits from a private garden, well-proportioned rooms, and a thoughtful layout.
Stepping into the flat, you are welcomed by a bright and inviting reception room positioned at the front of the property. Bursting with character, the reception room retains beautiful original cornicing and an elegant ceiling rose, with exposed floorboards adding warmth. A feature fireplace forms the focal point of the room, framed by bespoke shelving and cabinetry built into the alcoves, offering both style and practical storage. The bay window is fitted with chic café-style shutters, allowing you to adjust the light and privacy while maintaining the room’s period charm. A warm and characterful space, perfect for unwinding or entertaining friends in a relaxed setting.
The principal bedroom sits just off the central hallway and offers a calm retreat, tucked away in the centre of the home. Towards the rear, the second bedroom enjoys a particularly attractive setting with dual-aspect windows that bathe the room in natural light. A bay with a door leads directly out to the garden, creating a seamless indoor-outdoor connection that enhances the sense of space and brings the outdoors in. With its abundance of natural light, this room is ideal as a guest bedroom, children's room, or work-from-home office.
The kitchen has been designed with both style and functionality in mind. Navy blue cabinetry is paired with elegant gold handles for a striking, contemporary aesthetic, complemented by integrated appliances and sleek wooden worktops. The layout is both stylish and practical, allowing for efficient meal preparation, while the door leading out to the garden provides beautiful views, additional natural light and ventilation. A small breakfast bar offers the perfect spot for morning coffee or casual dining, while a large skylight overhead floods the space with natural light, creating a bright and airy atmosphere.
The bathroom is fitted with a shower-over-bath for flexibility and comfort. Finished with classic subway tiles and accented by matt black fixtures and fittings, the room exudes modern elegance that perfectly complements the period character found elsewhere in the flat.
One of the property’s most desirable features is the private garden. This outdoor haven offers a rare sense of seclusion in the heart of Brixton. Thoughtfully arranged with a combination of decking at the rear and low-maintenance artificial grass, the garden offers the perfect balance of relaxation and practicality. Ideal for al fresco dining, summer entertaining, or simply unwinding after a busy day, the space feels like a peaceful retreat.
Adding to the property’s practicality is a cellar accessed from within the flat, offering excellent storage potential. Perfect for stowing away seasonal items or creating a utility area, the cellar ensures the main living spaces remain uncluttered and functional.
Rosebery Road itself is a highly sought-after residential street, admired for its attractive period architecture and welcoming community atmosphere. The location places you perfectly between Clapham and Brixton, allowing easy access to the best of both neighbourhoods. Brixton offers a vibrant cultural hub with its bustling markets, independent boutiques, acclaimed restaurants, and the iconic Brixton Village, alongside entertainment options including the O2 Academy and Ritzy Cinema. Meanwhile, Clapham provides a more relaxed, village-like feel with its popular cafes, eateries, and the vast open spaces of Clapham Common, ideal for weekend strolls or outdoor activities. Transport connections are exceptional, with Brixton tube station (Victoria Line) and Clapham North (Northern Line) both within easy reach, alongside numerous bus routes and overground links, making commuting into central London and beyond straightforward.
EPC rating: C (69)
Clapham Common
1 mi / 21 mins walk
Route & infoZONE 2, Northern Line underground station with trains north via Bank or Charing Cross every five minutes (approx)
Clapham North
1 mi / 22 mins walk
Route & infoZONE 2, Northern Line underground station with trains north via Bank or Charing Cross every five minutes (approx)
Clapham South
1.1 mi / 23 mins walk
Route & infoZONE 2 (and 3), Northern Line underground station with trains north via Bank or Charing Cross every five minutes (approx)
Clapham High Street
1.1 mi / 23 mins walk
Route & infoZONE 2 Overground line between Highbury and Islington and Clapham Junction with trains every 5 minutes (approx). Limited service of Southeastern trains to Victoria too.
Streatham Hill
1.1 mi / 26 mins walk
Route & infoZONE 2. Southern services to Victoria via Clapham Junction, London Bridge, Crystal Palace and Sutton.
Brixton
1.3 mi / 28 mins walk
Route & infoVictoria Line services every three mins (approx) to Finsbury Park and Walthamstow Central.
Brixton
1.4 mi / 30 mins walk
Route & info4 trains direct to Victoria per hour and 4 to Orpington via Herne Hill
Balham
1.5 mi / 33 mins walk
Route & infoZONE 3. Southern services to Victoria, London Bridge, Milton Keynes, Epsom and Sutton.
Balham
1.5 mi / 33 mins walk
Route & infoZONE 3. Northern Line underground station with trains north via Bank or Charing Cross.
Herne Hill
1.6 mi / 34 mins walk
Route & infoZONE 2. First Capital Connect services to Victoria, Blackfriars and Wimbledon.
Brixton area highlights





Similar properties
What's your property worth?
Whether it’s time to move or you’re just weighing up your options, we can help you work out where you stand in the market with a free sales or lettings valuation.
Value my property